白藤
住所:長野県須坂市大字須坂32-1







築百五十年 国の登録有形文化財で過ごす 「余白」の時間
定員6名
おすすめポイント
宿の紹介
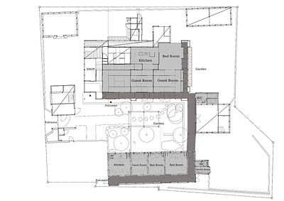
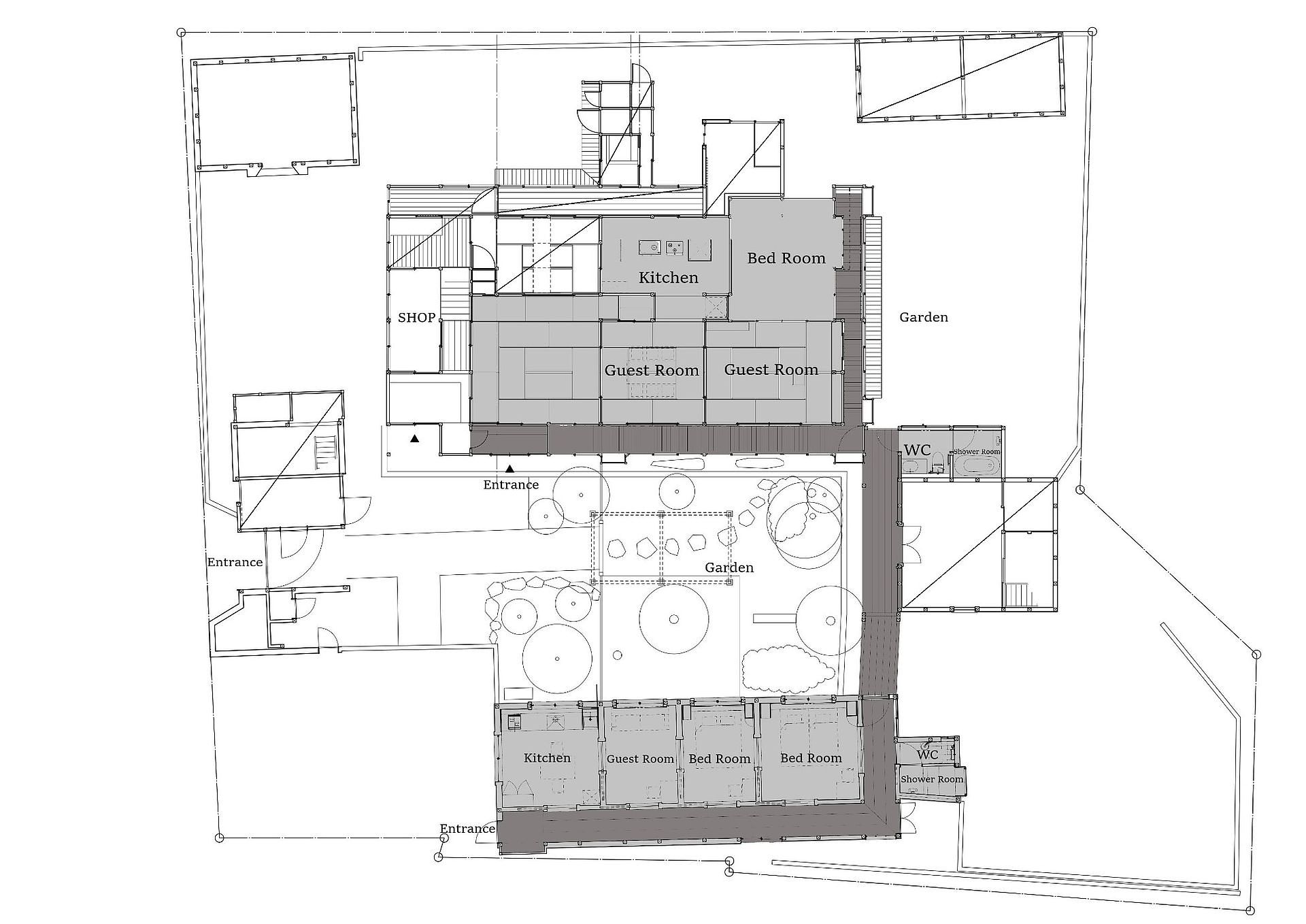
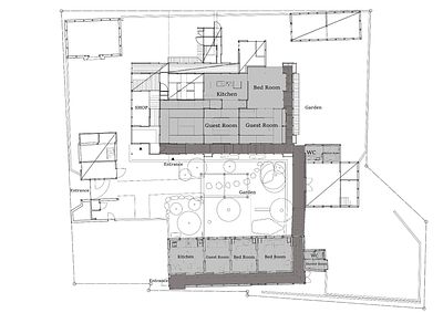
宿泊施設 「白藤」 は明治期に建てられた日本家屋と洋館を一日一組限定でご滞在いただける宿となります。 百年続いた建物を次の百年に繋げるためにかつての趣を最大限に活かしつつ、登録有形文化財で過ごす日本の暮らしの豊かさと心の贅沢を提供いたします。 須坂藩時代さらには明治期に栄華を誇った須坂の洒脱な文化と伝統を「白藤」で心ゆくまでご堪能ください。 日々の忙しさや都会の喧騒から離れ明治時代とも錯覚を覚えるようなこの場所で心穏やかにお寛ぎください。 須坂の街に精通したスタッフがチェックイン時にお客様をお出迎え致します。 ご滞在がより快適なものとなるよう二十四時間サポート致します。 敷地内をお客様だけでご利用いただける「白藤」は大切な日のご滞在や記念日などでのご利用にもおすすめです。 特別な準備などが必要な際にはスタッフ一同心を込めてお手伝い致します。 主屋・洋館ともにベッドルーム・お風呂・キッチン・お手洗いがございますので、二世帯のご家族やグループでのご滞在でも快適にお過ごしいただけます。 ■細部に宿る物語 国の登録有形文化財である「白藤」 百年ちかく受け継がれてきた空間で須坂の暮らしの豊かさをご体感ください この土地で採れた旬の果物や山菜 さらには地元産ワインや地酒まで豊富にご堪能していただけます 「白藤」に滞在しながら信州須坂・この街に息づく物語を随所に感じていただけるひとときをお過ごしください ■主屋 ~江戸後期︱明治九年(一八七六年)~ 医師である丸田家の住まいだった主屋 当時の須坂の繁栄が偲ばれるこの建物は国の登録有形文化財に指定されています お庭を眺めながら蹲の音だけが響き渡る夜 昭和・明治と時代をさかのぼる錯覚を起こすほど特別な空間となっております 主屋での過ごし方 書院造にあるベッドルームにはキングベッドが一つ。こちらはシングルベッド二つでのセットアップも可能です。 お庭を眺めながらゆっくりお過ごしいただけるソファ席のお部屋とお食事をとっていただくダイニングルームがございます。 また自由にお使いいただけるキッチンには、調理器具が揃っており簡単な料理も可能です。 バスルームでは、須坂の造り酒屋「遠藤酒造」の酒粕を使った酒粕風呂もお愉しみいただけます。 ■洋館 ~明治四十三年(一九一〇年)~ 須坂が製糸業で栄えた明治後期に建てられ当時ならではの意匠が施された洋館 細部にわたり丁寧にデザインされ各部屋毎異なる漆喰細工が施された天井は須坂に腕のいい漆喰職人が存在したことの証明となっています 「洋館に泊まる」という特別な体験をぜひご堪能ください 洋館での過ごし方 隣り合わせとなったベッドルームが二部屋。それぞれのお部屋にキングベッドが一台、クイーンベッドが一台ございます。キングベッドはシングルベッド二つでのセットアップも可能です。 ソファ席のお部屋にあるソファはソファベッドとしてもご利用いただけます。 洋館にも主屋同様キッチンがございます。 ご希望があれば洋館のベッドルームにてマッサージのサービスをお受けいただけます(有料)。
設備 / アメニティ
設備
アメニティ
その他
定員
6名
間取り
部屋の数: 6部屋
寝室の数: 3部屋
ベッドの数: 3台

チェックイン / チェックアウト
チェックイン:15:00以降
チェックアウト:12:00前
宿泊料金詳細 / キャンセル料について
素泊まりプラン ¥80,000~/2名様より 一泊二食付きプラン ¥132,000~/2名様より
キャンセルポリシー
30日前から15日前までのキャンセル:50%
14日前から当日までのキャンセル:100%
無連絡キャンセル:100%
予約・問い合わせ / 空き状況
受付中 受付中 (他会員 問合せ中) 空きなし
宿泊予定日の日付から予約・問い合わせできます。
地図
〈 自動車をご利用の場合 〉 中央道からの場合 → (岡谷JCT) → 長野自動車道 → (更埴JCT) → 上信越自動車道 → 須坂長野東IC 関越道からの場合 → (藤岡JCT) → 上信越道 → 須坂長野東IC 名神高速道からの場合 → (小牧JCT) → 中央自動車道 → (岡谷JCT) → 長野自動車道 → (更埴JCT) → 上信越自動車道 → 須坂長野東IC 須坂長野東ICを出て右折 → 八幡町東交差点を左折 → 横町中央交差点右折 → 上中町交差点を右折 少し進むと左側に一棟貸宿白藤がございます 駐車場は白藤の敷地内にございます 〈 電車とタクシーご利用の場合 〉 長野駅で長野電鉄線に乗り、須坂駅で降りてください JR長野駅善光寺口に長野電鉄に乗り換えるエスカレーターがあります 長野電鉄長野駅は地下にございます すべての電車が須坂駅で止まりますので、どの電車に乗っていただいても須坂駅に停車します 特急列車に乗るには、100円の特急券が必要となりますので、ご注意ください 須坂駅までスタッフがお迎えにあがります 【白藤の周辺情報】 善光寺 車で約30分 川中島古戦場跡 車で約30分 小布施 車で約12分 イオン須坂店 車で約4分 ツルヤ須坂西店 車で約4分 西友須坂店 車で約4分 ローソン須坂新町店 徒歩3分 セブンイレブン須坂新町店 徒歩9分
留意事項 / ハウスルール
〈 禁煙について 〉 当館は、国の登録有形文化財を宿泊施設として利用しております。 敷地内全て禁煙となり、喫煙所は設けておりません。予めご了承ください。 〈 ペットについて 〉 しらふじの施設は国の登録有形文化財となっております。所有者である須坂市からの要請で、盲導犬以外のペットとのご宿泊は出来兼ねます。大変申し訳ございません。 近くにペットホテルがございますので、よろしければご案内致します。
届出番号
長野県長野保険所指令03長保第24-3号



%20(1).jpg)


















