RE:VER北条
住所:千葉県館山市北条2645







【新築】建築のプロの技が集結した最高傑作
定員15名
おすすめポイント
宿の紹介
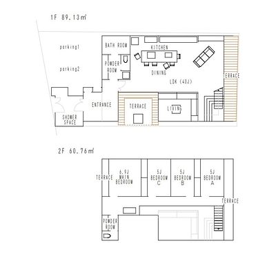
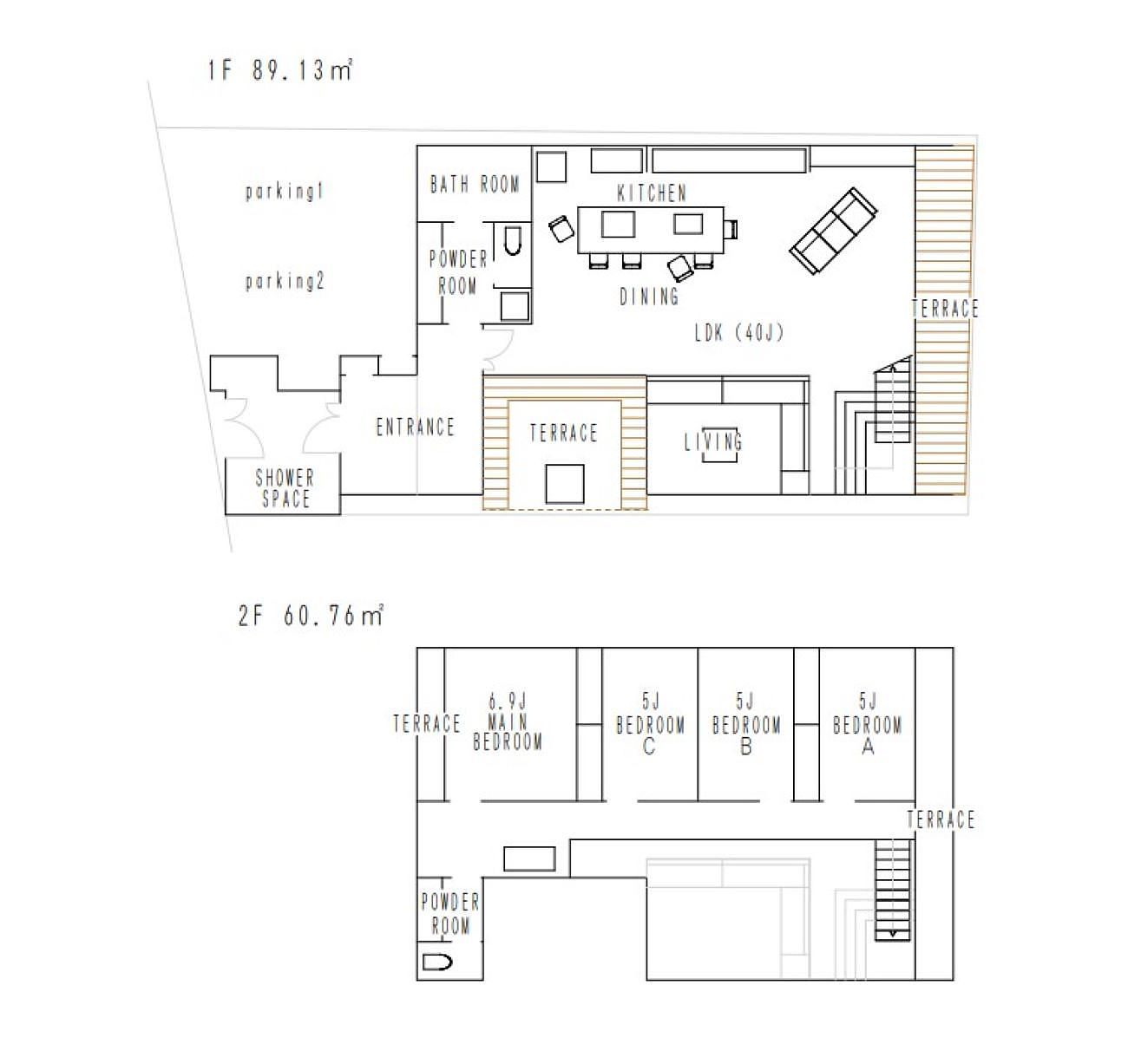
2024年3月オープン 建築のプロ、老舗「株式会社 中島松男工務店」グループがこだわりの空間をプレゼンツ。 ~ご家族や仲間で過ごす大切な時間を是非ここで~ 約40畳の1階LDKは約4つのセクションになっています。 <ダイニングエリア> 大きなダイニングテーブルにはHIコンロや水回りも埋め込まれ、家族や仲間揃ってのクッキングから食事まで楽しめます。 <リビングエリア> 大きな100インチTVを囲んでコの字型にソファーを配置。リラックスしての会話が弾みます。 <縁側テラスBBQエリア> 特別仕様で作製したBBQ台を囲んで、ぐるりと縁側を配しました。やわらかな火を囲んで非日常を楽しめます。 <リバーサイドテラスエリア> まるで川面に建っているかのようなリバービューです。光溢れる水面の輝きがテラスだけではなく、リビングにもキラキラと降り注ぎます。 また、2階寝室は4つに分かれているので大人数でもしっかりプライベートが確保できます。 館山湾にそそぐ汐入川の入江に位置し、リバービューとオーシャンビューの両方を楽しめる光溢れる壮麗なヴィラ。 館山、内房観光の拠点として。 ご家族やお友達との思い出作りの旅として、皆様のお越しをお待ちしています。 *--------------------------------------------------* 〇さらにRE:VER北条が選ばれる3つの条件 ①館山駅から徒歩圏内 →卒業旅行、ご家族旅行でもお車の手配が不要です ②北条海水浴場から100mの立地 さらにリバーサイドの立地です →水辺のリゾートを存分に味わえます ②収容人数15人までの大型施設 →サークルや職場、数家族の集まりでもご利用可能 *--------------------------------------------------* 〇お勧めプラン 春 館山観光+マザー牧場(いちご狩りなど)、鋸山ハイキング 夏 館山観光+マリンレジャー 秋 館山観光+グルメ温泉(内房、ばんや) 冬 館山観光+ドイツ村(イルミネーション) *--------------------------------------------------* ◆施設 一棟貸切りの別荘です。 1F:リビング約40畳、キッチン、ダイニング、 中庭(BBQスペース)、トイレ、洗面、浴室 2F:洋室4部屋、トイレ 駐車場:敷地内2台、敷地外2台(計4台) 〇設備 <バーベキュー> ※BBQは午後9時まででお願いします ■セット内容 肉用トング2/網1/着火用バーナー ※消耗品の炭はご自身でご用意ください <室内> エアコン : 各部屋に設置 〇備品 <調理器具> 両手鍋 /片手鍋 /フライパン /包丁 /まな板 菜箸/しゃもじ/キッチンバサミ/ピーラー/ 栓抜き/缶切りお玉/穴あきお玉/フライ返し 泡立て器/ボール・ザル大中小/ 味噌こし おろし器/サランラップ/アルミホイル キッチンペーパー/台所ふきん <食器> お皿各種/お椀/茶碗/コップ/箸/プーン/フォーク/トング お子様用食器もあり <寝具> 布団(最大15組)※13名以上は、寝室スペースの都合上1階リビングにてお休みください。
設備 / アメニティ
設備
アメニティ
その他
補足
※パジャマはご持参ください
定員
15名
間取り
部屋の数: 5部屋
寝室の数: 4部屋
布団の数: 15組

チェックイン / チェックアウト
チェックイン:15:00以降
チェックアウト:10:00前
宿泊料金詳細 / キャンセル料について
2024年3月オープン 〇料金について ※以下、ご注意ください。 ・定員は15名まで。(寝具数は最大15です) ・2歳以下のお子様は人数に数えません。※添い寝でお願い致します。 ・9名までは寝室3部屋のご利用です。9名以下で4部屋ご使用の場合は追加4,000円(税別)でのご利用になります。要事前連絡。 ーーーーーーーーーーーーーーーーーーーーーーーーーーー (1)平日・日曜日料金 日曜日から金曜日(2)(3)以外 基本料金(6名様まで) 60,000円(税別)+管理清掃費8,000円(税別) 大人追加1名様につき+11,000円(税別) 子供1名様につき(3歳~小学生)+4,000円(税別) ーーーーーーーーーーーーーーーーーーーーーーーーーーー (2)土曜日・祝日料金 土曜日、祝日、連休中 ・4月29日~5月2日(GW) ・7月21日~9月20日までの日~金(除く8月5日~20日) 基本料金(6名様まで) 90,000円(税別)+管理清掃費8,000円(税別) 大人追加1名様につき+11,000円(税別) 子供1名様につき(3歳~小学生)+4,000円(税別) ーーーーーーーーーーーーーーーーーーーーーーーーーーー (3)特定日料金 ・4月27日~5月5日(GW、除く4月29日~5月2日) ・7月19日~9月20日までの土曜日、祝日、連休中(夏休み) ・8月5日~8月20日(お盆) ・12月28日~1月5日(年末年始) 基本料金(6様まで) 115,000円(税別)+管理清掃費8,000円(税別) 大人追加1名様につき+11,000円(税別) 子供1名様につき(3歳~小学生)+4,000円(税別)(1)平日・日曜日料金 ・日曜日から金曜日(2)(3)以外 基本料金(6名様まで) 60,000円(税別)+管理清掃費8,000円(税別) 大人追加1名様につき +10,000円(税別) 子供1名様につき(3歳~小学生) +4,000円(税別) 〇お支払い;事前クレジット決済 ※キャンセル料発生前のキャンセル(人数変更を除く)は、カード手数料約3.5%の手数料を除いた全額返金になります。
キャンセルポリシー
30日前から22日前までのキャンセル:20%
21日前から15日前までのキャンセル:30%
14日前から8日前までのキャンセル:50%
7日前から2日前までのキャンセル:70%
1日前から当日までのキャンセル:100%
無連絡キャンセル:100%
支払い方法
予約・問い合わせ / 空き状況
受付中 受付中 (他会員 問合せ中) 空きなし
宿泊予定日の日付から予約・問い合わせできます。
地図
【交通アクセス】 ■JR館山駅から、徒歩7分(約500m) 【駐車場】 あり/無料 4台(敷地内2台、敷地外2台) 【周辺環境】 ■日帰り温泉 ・南総城山温泉 里見の湯 車で約6分 ※本格スパ複合温泉施設です ・海紅豆 人魚の湯 車で約8分 ■ゴルフ ・館山カントリークラブ 車で約17分 ■海水浴場 ・北条海岸 徒歩2分(約100m) ・国定公園、沖ノ島海水浴場 車で約9分 ■スーパー ・イオンタウン館山 車で約6分 ・おどやスーパーセンター館山店 車で約6分
留意事項 / ハウスルール
※ 施設内で発生した生ごみや缶、ビン、ペットボトルなどのゴミ処理は無料です。(発泡スチロールの入れ物はお客様で処分願います) ※ 利用した、食器類は洗浄後、元通りに片付けをお願いいたします。 ※泊者以外の施設への立ち入りは不可となりますのでご注意下さい。(泊まらずに滞在する場合も追加料金が発生します。) ご予約確定後に増員がある場合には必ず事前にご連絡下さい。ご連絡なしで発覚した際は正規料金の倍額を頂戴致します。 ※室内外問わず泥酔等で嘔吐された場合、特殊な清掃が必要となる為、別途11,000円(税込)をクリーニング代としてご請求させて頂きます。
届出番号
第R5-71号






























.jpg)
