VILLA BONDS A棟
住所:山梨県南都留郡富士河口湖町小立4566-1







2LDK+畳コーナー・洗面2ボウル 最大12名
定員12名
おすすめポイント
宿の紹介
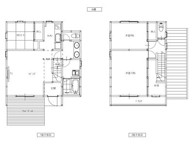
富士の麓・山梨県河口湖。戸建て型の完全プライベート空間コテージ「VILLA BONDS」 5棟の戸建てタイプのコテージと1棟のグランピングドームの計6棟。 各棟専用バルコニーでバーベキューも出来ます。 駐車は各棟ごと、プライベートが確保された空間でゆっくりお過ごしください。 コンビニまで徒歩約3分 ショッピングモール・大型スーパーまで徒歩約5分 富士急ハイランドまで車で約7分 河口湖畔まで車で約10分と便利な立地です♪ 河口湖周辺のお勧めアクティビティ たっぷり遊んだ後はVILLA BONDSでBBQを楽しんでくださいね♪ ・忍野八海:河口湖周辺にある、大小8つの池がある景勝地。新緑が美しく、湖面に映る富士山も見事です。 ・河口湖遊覧船:河口湖畔を遊覧するのに最適な方法です。新緑が美しい季節ですので、景色も格別でしょう。 ・フォレストアドベンチャー・フジ:2006年に日本第一号パークとして河口湖にオープンして16年を迎え、2023年4月22日に場所を変えてリニューアルオープン! ・河口湖音楽と森の美術館:オルゴールに囲まれたプチヨーロッパ体験を♪ ・大石公園:富士山と河口湖を背景にできる花の公園 生ビールが美味い!ドリンクスタンド・BONDS オープン! 注ぎたてプレモル・マスターズドリーム、あります! 4/29 フロント棟横に「ドリンクスタンド・BONDS」がオープン! 生ビール、ハイボール、焼酎、ウィスキーなどなど地元サントリーさんのドリンク中心の品ぞろえでご用意しましたので、ぜひご利用ください! ◎営業時間:15時~21時 (メンテナンスのため休止となる場合もございます) ◎ドリンクご注文時に現金でのお支払いでお願いします 【1F】 ■リビング ■4.5帖のタタミコーナー ■キッチン ■洗面(2ボウル) ■お風呂(ユニットバス) ■トイレ ■専用バルコニー(17㎡) 【2F】 ■寝室(6帖・10帖) ■トイレ
設備 / アメニティ
設備
アメニティ
その他
定員
12名
間取り
寝室の数: 2部屋

チェックイン / チェックアウト
チェックイン:15:00以降
チェックアウト:10:00前
宿泊料金詳細 / キャンセル料について
バーベキューご利用時のご案内 【ご利用時間】 チェックイン後、21:30までの間でのご利用となります。 【ご利用料金】 1棟につき4,000円(税込) 【ご利用料金に含まれるもの】コロン利用料、燃料(炭)、手袋、トング、網、鉄板、紙皿、紙コップ、割りばし ※お子様用の食器・フォーク・スプーンは室内に設置の物をご利用下さい。 【お買い物情報】 ・フォレストモール富士河口湖内マックスバリュー富士河口湖店 車で約3分、徒歩約5分 営業時間7時~23時半 ・ファミマ河口湖フォレストモール前店 徒歩約3分 【お願い】コンロ、火鉢等のお持ち込みは、ご遠慮ください。(追加の炭は、お持ち込み可。)
キャンセルポリシー
7日前から3日前までのキャンセル:30%
2日前から1日前までのキャンセル:50%
当日のキャンセル:100%
無連絡キャンセル:100%
支払い方法
予約・問い合わせ / 空き状況
受付中 受付中 (他会員 問合せ中) 空きなし
宿泊予定日の日付から予約・問い合わせできます。
地図
河口湖インターより車で10分。河口湖駅より車で10分。 送迎あり 予約時にその旨をお伝え下さい。 【ナビ設定時のご注意!】 新しい施設のため、ナビが誤った場所を指定する可能性があります。 その場合、近隣である以下住所を入力してください。 →山梨県南都留郡富士河口湖町小立4555 電車の場合 ■富士急行線河口湖駅から 河口湖周遊バス(ブルーライン)乗車、[69]フォレストモール河口湖前下車。 徒歩3分。 自動車の場合 ■中央自動車道 河口湖ICから5分、国道139号線を西進。約3km。 小立南信号左折、約300m。 ■東富士五湖道路 富士吉田ICから3.5km、6分。 駐車場:有り(無料) 大型車も駐車出来ます。 大型車の場合は予約時にその旨をお伝えください。 周辺ガイド 【車・バス】 ■富士急ハイランド:当コテージから車で10分。 【徒歩圏】 ■コンビニ(ファミリーマート):徒歩5分。 ■ショッピングモール(フォレストモール河口湖):徒歩5分。 スーパー(マックスバリュー) / ホームセンター(くろがねや)
留意事項 / ハウスルール
1. 建物内は(電子タバコ含む)全面禁煙です。(喫煙は、ウッドデッキにてお願いします。) 2. 調理器具、食器はご利用の後、洗って元の位置に戻してください。 3. レンタル品はチェックアウト時に、フロントまでお返し下さい。 4. 器具、食器等の破損は、直ちに申告をお願いします。 5. 室内での顕著な汚れ、破損等について、回復費用をご負担ください。 6. バーベキュー、テラスの使用は、21:30までとなります。 7. ペット同伴でのご利用はご遠慮いただいております。 8. 敷地内では手持ち花火のみ可能です。 9. BBQを楽しむ際は、備え付けのBBQコンロをご使用ください。 火気使用中は、必ず1人以上で火の番をしてください。 (コンロのお持ち込みは、ご遠慮ください。) (追加の炭のお持ち込みは可能です。) (万が一に備えて、消火用のバケツに水を入れてご利用ください。) 10. 敷地内での焚火は禁止とさせていただきます。 11. バーベキュー後は、スタッフの指示に従ってください。(火のついた炭は、コンロから出さないでください。) 12. ゴミは、建物内に備え付けられているゴミ箱内に分別して捨ててください。 13. 敷地内において発生した盗難紛失については、一切の責任を負いかねます。 14. 駐車場内の、事故、トラブルは、一切の責任を負いかねます。 15. 備え付けの家電製品は、定められた方法でお使いください。 16. 建物内には、吹き抜け・ベランダの手すり等の危険個所があります。 小さいお子様のご利用には、特にご注意ください。 なお、当施設ご利用にかかる事故については、一切の責任を負いかねます。
届出番号
山梨県指令富東福第5733号


















