炎ハウス山中湖マイペンライ
住所:山梨県南都留郡山中湖村平野1141-119







ファイヤーピット&薪ストーブ付き🏡 山中湖畔の別荘でBBQ&焚き火を満喫!
定員16名
おすすめポイント
宿の紹介
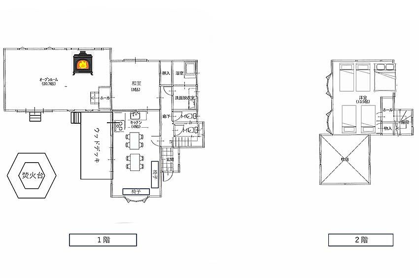
「炎ハウス山中湖マイペンライ」は山名湖畔にも近く富士山を見ながらの散歩も格別の貸別荘です。 最大16名まで泊まれて、わんちゃんも4匹まで同伴可能な、庭付き別荘でBBQ機材はなんと無料レンタル! 道の駅で新鮮な食材を買って、BBQをぜひ楽しんでください。 リビングには大型薪ストーブ、庭にはファイアピットがあるので薪をお持ち頂くことで火を囲んで語り合う事ができるので、家族や仲のいい友人グループでの滞在にもおすすめ! *申込後に空室確認を行います。空室がある場合はお手続きについてご案内いたします。 ■建物 121㎡ 洋室1ダブルベッド1台、シングルベッド4台、和室1、オープンルーム1 トイレ2、お風呂1 最適人数10人、最大人数16人 ■設備 ファイヤーピット 薪ストーブ アスペクト14 BBQコンロ(消耗品はご持参ください)
設備 / アメニティ
設備
アメニティ
その他
補足
【調理設備】 鍋、フライパン、包丁、まな板、水切りボール、ボール、オタマ、フライ返し、ピーラー、調理バサミ 【薪ストーブ、キャンプファイヤー、花火設備】 当施設で以下の物を販売しております。薪10本まで1000円、追加1本100円。 花火ですが21時まで、打ち上げ花火禁止です。 【バーベキュー器具類】 BBQコンロ、網、トング、スプーン、フォーク、お箸。 大音量の音楽、大騒ぎは禁止です 【室内設備】 エアコン 暖炉、薪ストーブ 【屋外設備】 駐車場 防犯カメラ(屋外) 【その他】 BBQ機材レンタル:機材、網、トング 第一駐車場:敷地内2台、第二駐車場(ふじのもりCamp):2台
定員
16名
間取り
部屋の数: 4部屋
寝室の数: 3部屋
ベッドの数: 5台
布団の数: 10組

チェックイン / チェックアウト
チェックイン:16:00以降
チェックアウト:10:00前
宿泊料金詳細 / キャンセル料について
≪宿泊料金≫ ◆オフシーズン【11月から2月】 平 日:24,000円(4名)~96,000円(16名) 土休前日:32,000円(4名)~128,000円(16名) ◆ハイシーズン 【3月から10月】 平 日:32,000円(4名)~128,000円(16名) 土休前日:40,000円(4名)~160,000円(16名) ◆トップシーズン【GW&8月&年末年始】 平 日:60,000円(4名)~160,000円(16名) 土休前日:70,000円(4名)~180,000円(16名) ※小学生以下は半額。一歳未満の場合は無料。 ※ペット(小〜中型犬) ¥3,300/泊 ※BBQ機材レンタル(無料) お問い合わせ頂きましたら、見積もりを提示致します。 宜しければ、ご入金準備が出来てから、予約リクエストの送信をお願い致します。 予約確定となった場合、チェックイン1か月前までに、チェックインが1か月を切っている場合には3日以内の銀行振込をお願いします。 期限までにご入金がない場合、予告なく「予約キャンセル」となる場合がございますので、ご注意下さい。
キャンセルポリシー
30日前から21日前までのキャンセル:30%
20日前から15日前までのキャンセル:50%
14日前から8日前までのキャンセル:80%
7日前から当日までのキャンセル:100%
無連絡キャンセル:100%
支払い方法
予約・問い合わせ / 空き状況
受付中 受付中 (他会員 問合せ中) 空きなし
宿泊予定日の日付から予約・問い合わせできます。
地図
【アクセス情報】 車...山中湖ICから約17分 バス...高速バス平野バス停から徒歩約25分 電車...富士山駅から路線バス平野バス停行きで約40分 駐車場: 軽3台、普通車2台 敷地外駐車場2台(徒歩1分) 【周辺情報】 コンビニ:車で5分 スーパー(オギノ山中湖店):車で15分 平野の浜:車で7分 山中湖平野温泉:車で7分 御殿場プレミアム・アウトレット:車で38分
留意事項 / ハウスルール
ハウスルール 定員について 予約時にお申し込みいただいた方(人数)のみ入館できます。 弊社スタッフの確認時に申請した人数と相違があった場合は、違約となり即刻退館となります。 宿泊者情報の提出 全員分の宿泊者名簿(氏名、住所、年齢、職業、性別(任意)、国籍)の提出が必須です。 *外国籍のお客様や、法令上必要な場合には、パスポート・身分証明書(顔写真付)のご提出をお願いしております。 チェックイン手続き チェックイン方法は施設により異なります。 マイページまたは予約後にお送りする入館ガイド内のチェックイン方法をご確認ください。 ◎セルフチェックイン施設:記載しているチェックイン方法、PDF等(ある場合のみ)を事前にご確認の上、入館ください。 ◎立会いがある施設:入館手続きがありますので、到着予定時間に必ずお越しください。ご到着時間に変更がある場合には、必ず事前にご一報ください。 時間を過ぎると当日キャンセルとなる場合がございます。 火気について 花火、キャンドル、焚火などの火気使用は禁止です。(館内、庭、道路など屋外を含む) *ハウスルール下部に特例のある施設のみ、一部使用可能なものもあります。 騒音について 騒音禁止です。夜間は屋外での歓談もご遠慮ください。 清掃について チェックアウト後の清掃料金は含まれておりますが、使用状況によって、別途費用をご請求させていただく場合がございます。ゴミは分別してください。なおご滞在中(中間)の清掃は入りません。 無料幼児について 無料でお受けしている乳幼児のお子様は、添い寝でお願いします。寝具・タオルのご用意はありません。 禁止の利用目的 宿泊以外の利用は原則禁止です。以下の場合は事前にお問合わせください。 *企業合宿、SNS動画を含む撮影利用(別途 撮影料金と企画内容の審査が必要)、その他の目的など。 外出、退館時の確認 外出、退館の際には、戸締り、消灯、エアコン等の電源を切ってください。 退館時間をお守りいただけない場合には超過料金が発生します。 また光熱費が規定量を超えた場合は、別途ご請求する場合があります。 駐車場について 駐車場がある施設は、所定の台数のみ駐車できます。(駐車場がない施設もございます) またいかなる場合も、公道や近隣敷地へ駐車することは禁止です。 禁煙(一部喫煙スペース有) 建物内は禁煙ですが、屋外の、一部指定場所のみ喫煙可能です。 指定場所(屋外)をお守りください。 必ず携帯灰皿を持参の上、タバコのゴミはお持ち帰りください。 ペット(同伴可) 犬のみ同伴可。ペット規約への同意が必須です。ペット用品(足拭きタオル、ペットシーツなど)はご持参ください。現地のタオルをペットに使用することは禁止です。また所定場所以外の立入りは禁止です。(犬種サイズの指定あり) BBQ(機材レンタルもしくは持込) BBQ機材レンタル有り(持込も可能)。使用後は必ず火の始末と、片付けを行ってください。 *ハウスルール下部の注意(終了時間など)もお守りください。 防犯カメラ 屋外に防犯用のカメラを設置しております。 定員オーバーや、不正利用がないかなど、確認を致します。あらかじめご了承ください。 ●BBQ機材レンタル(無料・事前申し込み制) グリル本体、トング、網を貸し出します。 炭や食材はありませんので、ご持参ください。 ●屋外のみ喫煙が可能です。 それ以外の場所は全面禁煙です。 万一、ハウスルールやご利用規約を遵守いただけなかった場合は、違約金および修繕/補償に掛かる費用(最低5万円〜)を申し受けます。状況により、即刻ご退館いただく場合もございます。
届出番号
山梨県指令 富東福第8149号
























