GOEN
住所:福島県いわき市常磐湯本町栄田65-9







懐かしさと新しさが調和する一棟貸し古民家
定員6名
おすすめポイント
宿の紹介
築60年の古民家を2024年にフルリノベーションし、一日一組限定の宿泊施設としてオープンしました。 水回りやキッチン、トイレなどはすべて新品のため、清潔で快適に過ごせます。 2階からは隣接する山々の風景を眺めながら、のんびりとした穏やかな時間をお楽しみいただけます。 キッチンには調味料類をご用意し、洗濯乾燥機も完備しているため、長期滞在にもおすすめです。 【GOENのおすすめポイント】 ✅ 築60年の趣ある空間 ・柱や建具など、歴史を感じる風合いをそのまま活かした趣深い空間 ・床の傾きや隙間のある建具も、古民家ならではの味わいとしてお楽しみください ✅ 温泉&観光を満喫できる好立地 ・JR湯本駅から徒歩圏内&駐車場完備で、電車でも車でもアクセス良好 ・最寄りの日帰り温泉施設まで徒歩5分!いわきの温泉巡りに最適 ✅ ファミリーに優しい設備 ・キッズスペース完備!絵本やオモチャ、子供用アメニティ(歯ブラシ、お尻ふきなど)も充実 ✅ 陶芸体験も可能 ・当館は陶芸教室が運営している施設で、車で10分の陶芸教室で体験ができます(要予約) 【施設情報】 リビング 寝室6畳×2室 洗面所 キッチン 冷蔵庫/オーブンレンジ/電子ケトル/炊飯器/フライパン/片手鍋/両手鍋/ボウル/ざる/包丁/トング/おたま/フライ返し/調理スプーン//菜箸/まな板/キッチンバサミ/ピーラー/計量カップ/箸/スプーン/フォーク/ナイフ/食器/マグカップ/グラス/お子様用食器類/キッチンペーパー/サランラップ/アルミホイル ~いわき市の魅力~ 福島県いわき市は、海と山、温泉、グルメと多彩な魅力が詰まった観光地です。特に湯本温泉郷は古くからの名湯として知られ、数多くの温泉施設が点在しています。 また「スパリゾートハワイアンズ」まで施設から車で9分、「石炭化石館ほるる」まで施設から車で5分と、人気の観光スポットへのアクセスも抜群です。 築60年の歴史が息づく空間で、懐かしさと新しさが交差する特別なひとときをお楽しみください。
設備 / アメニティ
設備
アメニティ
その他
補足
【ファミリー向け設備】 Goenはお子様連れの方に快適に過ごしていただけるよう、以下のお子様用アメニティをご用意しています。 子供用食器/おもちゃ/絵本/補助便座/子供用ハンガー/キッズスツール/子供用ソープ(全身用)/ベビー用ボディクリーム/子供用歯ブラシ(歯磨き粉付属無し) 【調味料】 塩胡椒、砂糖、醤油、油等 【調理器具】 鍋(片手鍋/両手鍋)/フライパン//食器&カトラリー/ボウル/ざる/包丁/トング/おたま/フライ返し/調理スプーン/菜箸/まな板/キッチンバサミ/ピーラー/計量カップ/ベーキングシート/コーヒー
定員
6名
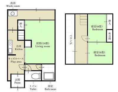
間取り
部屋の数: 3部屋
寝室の数: 2部屋

チェックイン / チェックアウト
チェックイン:15:00以降
チェックアウト:10:00前
宿泊料金詳細 / キャンセル料について
【平日】 大人6人(定員)で宿泊した場合:総額30,000円(税込) /1人あたり5,000円 【土曜日】大人6人(定員)で宿泊した場合:総額39,000円(税込) /1人あたり6,500円 <ハイシーズン> 【平日】大人6人(定員)で宿泊した場合:総額39,000円(税込) 1人あたり6,500円 【土曜日】大人6人(定員)で宿泊した場合:総額54,000円(税込) 1人あたり9,000円 ※上記料金は一棟貸し切り料金となります。人数にかかわらわず価格は一律となります。最大6名まで宿泊可能です。 ※時期によって変動いたします 当施設は無人施設のため、お支払いは100%前払いとなります。 キャンセル料 到着日の7日前の前日までは無料でキャンセルできます。 到着日の7日前以降にキャンセルした場合は、宿泊料金の100%が請求されます。
キャンセルポリシー
8日前までのキャンセル:無料
7日前から当日までのキャンセル:100%
無連絡キャンセル:100%
支払い方法
予約・問い合わせ / 空き状況
受付中 受付中 (他会員 問合せ中) 空きなし
宿泊予定日の日付から予約・問い合わせできます。
地図
【アクセス情報】 湯本駅まで徒歩13分 いわき湯本インターから車で6分 <駅からのタクシー利用の場合> 湯本駅からタクシー利用の場合の料金は約580円となります。 【駐車場】 2台までOK 【周辺情報】 ▼お出かけスポット ・スパリゾートハワイアンズ 車9分 ・石炭化石館ほるる 車5分/徒歩21分 ・国宝白水の阿弥陀堂 車10分 ・アクアマリンふくしま 車22分 ▼施設近辺の便利なお店 ・ドラッグストア:クスリのアオキ 徒歩11分/車2分 ・コンビニ:ファミリーマート いわき常磐上湯長谷店 徒歩13分/車3分 ・スーパー:マルト SC湯本店 徒歩19分/車5分 ・ホームセンター:ダイユーエイト いわき湯本店 徒歩19分/車5分 ・100円ショップ:ワッツウィズ浅貝ファミリー店 徒歩14分/車3分
留意事項 / ハウスルール
当施設は無人運営になります。お時間になりましたらキーボックスにてご入室をお願いいたします。 [チェックイン]15:00 [チェックアウト]10:00 【ご留意点】 この施設は築60年のとても古い建物です。 リノベーションを行い、清潔感のある施設ですが、以下の点ご留意ください。 ・古い施設なので、現代の建物に比べると寒いです。 その分暖房器具はしっかり用意して対応しています。また二階の床がまっすぐでない箇所があったりするのですが、古い建物あるあるでもあるので、そこも含めて味わいと思っていただけたら嬉しいです。 ・写真では水洗トイレに見えますが、実は簡易水洗です。通常の水洗とは少し使用方法が異なります。 ただ、新品で清潔感がありますし、そう難しくはありません。 ・隣が山になっていますので、虫が入る可能性があります。駆除スプレー等はご用意しておりますのでそちらお使いください。 ・施設の付近は空き地、空き家、資材置き場に囲まれていて雄大な自然を感じるロケーションではないかもしれません。 ただ、比較的観光地や駅が近いことや、周りに住宅がないからこそ気兼ねなくすごせるかと思います。
届出番号
第M070044907号

































