シルバースプレイ「Exclusive Accommodation」
住所:山梨県南都留郡山中湖村平野366







【大型ヴィラ】1200坪の芝生の庭付き
定員24名
おすすめポイント
宿の紹介
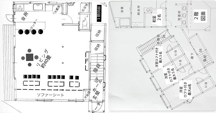
富士山を眺めながら自由に贅沢にご滞在いただけます🗻 ・最大24名様宿泊可能! ・1200坪の芝生の庭付き!使い方は無限大!! ・最新システムキッチン付き約40畳の広々リビングダイニング ・リビング直通の全天候型BBQ場 ・女性に嬉しい大型パウダールーム完備 ・富士山展望風呂からの絶景は圧巻 🍖 全天候型BBQ場 全天候型BBQ場では、みんなでワイワイ楽しめる時間を。 外で味わうBBQは開放的で、食材もより美味しく感じられます。 ファミリーや仲間と共に、思い出のひとときをここでお過ごしください。 【BBQコンロレンタル ¥5,500(税込)】 内容:炭6kg/着火剤/割り箸/紙皿/紙コップ/トング/菜箸/フライ返し BBQ施設料お一人様¥200 ※豪雨暴風、台風などの場合には雨の吹きこみの可能性がございますのでご利用いただけない場合もございます。 🔥 アウトドアサウナ体験 2台のハイカロリー仕様の薪ストーブに、厳選された広葉樹の薪を使用することにより室内を高温まで上昇させます。 ■ ワンセット2時間。(着衣でのご利用) ■ 利用時間 15時~21時(最終19時スタート)/ 7時~9時(朝ウナおすすめです!) 荒天時は使用不可となります。 冬季は凍結の為水風呂はございませんが、外気温が氷点下の為十分トトノイますのでご安心ください。 ⚽ アクティビティ 広々とした庭ではサッカーボール・バドミントン等の無料貸出あり。お持込みもOKです⚽ 道路にも面していないため、お子様も安全にのびのびと遊べます。 タープの設営もOK、使い方は無限大です! 🏠 お部屋・間取り ・最大24名様宿泊可能 ・約40畳のリビングダイニング ・最新システムキッチン ・主寝室(メゾネットタイプ×3室) ①ベッド5台 ②ベッド4台+ソファーベッド1台 ③ベッド4台+ソファーベッド1台 ・琉球畳のモダン和室(布団セット×2/添い寝に最適) ・リビングダイニングにソファーベッド×2、布団セット最大×5 ・大人数でも快適にご入浴いただける富士山展望風呂(3〜4名同時利用可) ・トイレ付き ・女性に嬉しい大型パウダールーム完備 1200坪の芝生の庭では、季節の風を感じながら思い思いの時間を過ごせます。 四季折々に異なる表情を見せる富士山の麓、山中湖で優雅なひとときをお過ごしください。 【サウナ・その他設備】 ・テントサウナあり(有料) ・焚き火台完備(有料) ・11月〜4月は暖房費お一人様¥200
設備 / アメニティ
設備
アメニティ
その他
補足
・70型8Kテレビ ・全天候型BBQ場(有料) ・BBQコンロ(有料) ・リビングダイニング床暖房 ・ウォシュレット ・富士山展望風呂 ・バストイレ付き部屋×3 ・ロフト ・土鍋 ・ テントサウナ ・ファイヤーピット焚き火台
定員
24名
間取り
部屋の数: 5部屋
寝室の数: 5部屋
ベッドの数: 18台
布団の数: 6組

チェックイン / チェックアウト
チェックイン:15:00以降
チェックアウト:10:00前
宿泊料金詳細 / キャンセル料について
・平日5名様まで¥35,000〜 (追加人数お一人様¥6,050〜 ・土曜日【一棟貸しルームチャージ】 24名様まで一律料金 ¥145,000〜 ・ハイシーズン特定日【一棟貸しルームチャージ】 24名様まで一律料金 ¥220,000〜 ■追加オプション ・清掃料¥7,700 ・BBQコンロレンタル¥5,500 ・BBQ施設料お一人様¥200 ・11月〜3月末日 暖房費 お一人様¥200 ・アウトドアサウナ体験(※1) 5,500円(税込)~ ・ファイヤーピット焚き火台(2時間分の広葉樹の薪付) 2,200円(税込) ・ディナーコース¥4,400 ・本格グランピングBBQコース¥4,400 ・朝食¥1,650 (※1)アウトドアサウナ体験について アウトドアサウナ体験は、5名様まで1グループ5,500円(税込)・以降1名様追加ごと1,100円(税込)。 薪ストーブで室内を暖めますので、準備に1時間30分程かかります。 (利用時間を確認の上、ご指定の時間がございましたらお知らせください。) ■ ワンセット2時間(着衣でのご利用) ■ 利用時間 15時~21時(最終19時スタート)/ 7時~9時(朝ウナおすすめです!) 荒天時は使用不可となります。 冬季は凍結の為水風呂はございませんが、外気温が氷点下の為十分トトノイますのでご安心ください。 【支払い】 ・事前振込 ・現地決済 ・予約リクエスト時にご希望の支払い方法をお知らせください。 ※振込手数料はお客様負担でお願いいたします。
キャンセルポリシー
21日前から当日までのキャンセル:100%
無連絡キャンセル:100%
支払い方法
予約・問い合わせ / 空き状況
受付中 受付中 (他会員 問合せ中) 空きなし
宿泊予定日の日付から予約・問い合わせできます。
地図
バス:高速バス平野バス停から徒歩5分 車:山中湖ICから10分 電車:富士山駅から路線バス「平野」行で40分 駐車場: 8台 ・大型スーパー【オギノ】車約10分 ・交流プラザ【きらら】車約2分 ・石割りの湯 車約3分 ・花の都公園 車約12分 ・富士急ハイランド 車約30分 ・富士サファリパーク 車約40分 ・御殿場プレミアムアウトレット 車約30分
留意事項 / ハウスルール
*BBQコンロをご利用の際は、使用料として税込5,500円を別途頂戴致します *清掃料として税込7,700円を別途頂戴致します *11月~3月は、暖房費としてお一人様200円別途頂戴致します *備品を使用される場合は、現状復帰にご協力ください *ペットの受け入れは不可となります *ご宿泊者以外のご入館は、お控えください ※別途料金をいただく場合もございます *現地でのカード払いは3 %の手数料を頂戴致します
届出番号
山梨果指令富東福第5012号












.jpg)





















