古民家別邸&グランピング
住所:茨城県つくば市吉瀬1680−1 つくば文化郷 別邸







古民家グランピンプライベートサウナ×バーベキュー×焚き火
定員8名
おすすめポイント
宿の紹介
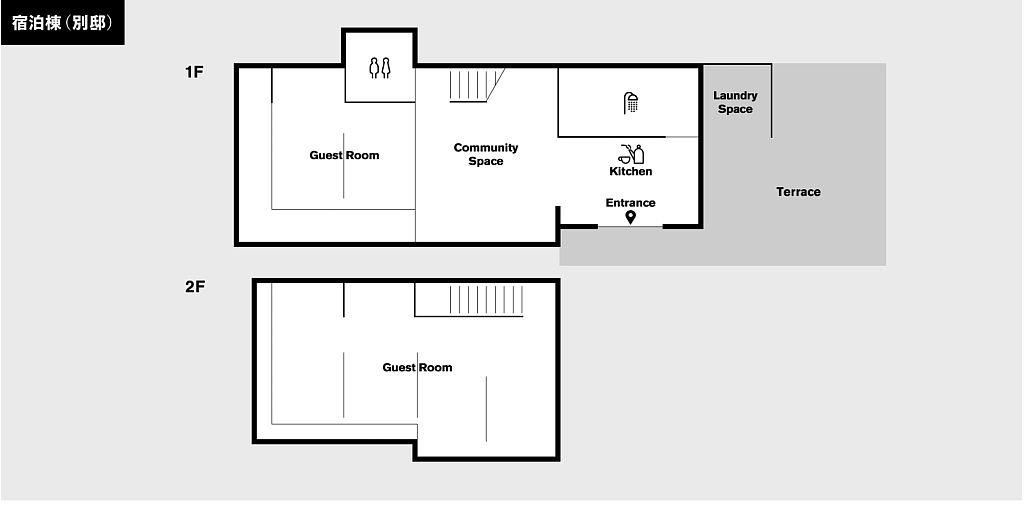
都心から1時間でアクセスできる隠れ家。 150年の歴史ある古民家の離れ「別邸」で懐かしさと静けさを感じながら、もみじに囲まれた専用の内庭と森のキッチンテラスでのんびりした時間をお過ごしください。 ▶間取り図(3LDK) ・Community Space(コミュニティスペース)① ・Guest Room(ゲストルーム)② 寝具:クイーンベッド1台/ダブルベッド1台/シングルベッド1台/布団複数組 ※基本的に、2階の3ベッドで大人4名ご利用を想定して準備します。5名目からお布団をご用意します。 ※4名の利用でそれぞれ別々のお布団が必要な場合は、事前にお申し付けください。 ≪古民家別邸のおすすめの利用シーン≫ ・複数ご家族・グループで... ゆったりと大人6名〜追加布団で8名まで宿泊可能です! ・ご家族・カップルで... お子様連れでも気兼ねなく。カップルの記念日などにもぴったりです。 ・企業の合宿で... 企業の少人数チームの合宿にも最適です。自然に囲まれた静かな環境で、集中して作業もできます。 《 古民家別邸のここがおすすめ! 》 ■白壁のドーム型プライベートサウナ おとぎ話に出てくるようなとんがり帽子のドーム型のサウナ フィンランド製サウナストーブを採用して本格ロウリュウも🔥 ■お食事プランも充実 ・台湾カフェ小玉(本物の台湾料理) 台湾コース料理でゆっくりとしたお時間を過ごされるのもおすすめです! ・森のキッチンテラスで食材持ち込みでBBQ🍖 小鳥のさえずりや、水の流れる音を聴きながらゆったりしたお食事をお楽しみください。 ■約1000坪の古民家敷地内に様々な施設あり! 滞在中は敷地内でお楽しみいただけます♪ 【施設内詳細】 ・別邸内庭 ・母屋1階(アンティーク家具屋さん) ・表庭 ・長屋門(本格珈琲ショップまめはさん) ・蔵(職人の手仕事の生活道具屋てのねさん) ・別館(台湾カフェ小玉、陶芸舎)
設備 / アメニティ
設備
アメニティ
その他
補足
テラス大型キッチン(3口ガスコンロ付) 室内キッチン(IHコンロ) 冷蔵庫・炊飯器(5合)・電子レンジ・トースター・カセットコンロ・ホットプレート 調理器具(フライパン:大小、鍋:大中小) 食器 調味料(塩・胡椒・砂糖・醤油・油) ・アメニティ バスタオル・歯ブラシセット(予約人数分) シャンプー・コンディショナー・ボディソープ ドライヤー ・有料設備 BBQグリル(ガス):5500円 BBQコンロ(炭付):3300円 焚き火セット(薪付):3300円 ・その他 Bluetooth スピーカー(BALMUDA):無料 プロジェクター:無料 100インチスクリーン:2,200円
定員
8名
間取り
部屋の数: 3部屋
寝室の数: 3部屋
ベッドの数: 3台
布団の数: 5組


チェックイン / チェックアウト
チェックイン:16:00以降
チェックアウト:11:00前
宿泊料金詳細 / キャンセル料について
※価格は税抜金額です 基本貸切料金(2名)から1名追加ごとに3,300円 6名利用で一人当たり7,700円、8名で一人当たり6,600円でご利用できます。 ※2歳以下のお子様は無料 ■有料設備 貸切サウナ:12,000円(3時間) BBQグリル(ガス):5000円 BBQコンロ(炭付):3000円 焚き火セット(薪付):3000円 100インチスクリーン:2,000円 ※BBQセットのレンタルは事前予約です。 夕食付きプランの場合、小さなお子様にも可能な限り柔軟に対応致します(殆どのメニューが小さなお子様に人気です)。 お子様の食事の持ち込みもOKです。 ■企業の合宿 法人利用で連泊の場合は、食事やその他オプションを含め連泊の割引お見積も対応いたします。お気軽にご相談ください。 ■8名以上のご利用 別途ご相談に応じます。8名で予約確定の後、別途調整可能です。 お部屋割りの調整、敷地内の別棟貸し出しなどで最大12名まで応相談。
キャンセルポリシー
6日前までのキャンセル:無料
4日前から当日までのキャンセル:100%
無連絡キャンセル:100%
支払い方法
予約・問い合わせ / 空き状況
受付中 受付中 (他会員 問合せ中) 空きなし
宿泊予定日の日付から予約・問い合わせできます。
地図
【アクセス】 <お車> 常磐自動車道 桜土浦インターより8分 Googleマップで「台湾カフェ小玉」を検索してください。 チェックインもこちらで受付しております。 <公共交通機関> つくば駅または土浦駅からバスで15分 バス停より徒歩5分 お車でお越しのお客様は、『つくば文化郷の共有駐車場』をご利用ください。
留意事項 / ハウスルール
※夕食は隣接の台湾カフェでご提供いたします(18時〜21時) ※お部屋で食事をご希望の場合はご相談ください(別途ケータリング手数料を頂きます)。 ※お酒の持ち込みはご遠慮ください。 【禁止事項と注意事項】 ■利用範囲について 当施設は、古民家施設つくば文化郷の一部を利用した宿泊施設です。他テナントも入居しております。 別邸利用の方は、別邸の内庭・テラスの半分(別邸側)が専用スペースです。 それ以外のスペース共有スペースですので各テナントへのご配慮にご協力お願いします。 ■夜間の音について 夜間は周辺が大変静かになります。近隣に民家もございますので、テラスや内庭での話し声や音楽等は常識の範囲内で調整ご協力ください。 ■喫煙について つくば文化郷の敷地内は全面禁煙となっております。 専用駐車場(ガラス温室周り)に灰皿がございますのでそちらをご利用ください。 ■焚き火やBBQ(炭)について 歴史ある貴重な古民家を宿泊施設として特別に一部を開放していただいております。必ず利用申し込みの上(有料)、利用可能範囲内でのご利用と、敷地内の他店舗のご利用者のご迷惑にならないよう、何卒ご理解、ご協力の程よろしくお願いいたします。 ※花火は焚火をご利用の方に限らせていただきます
届出番号
M080029429






































