KOZA River House 湯川邸
住所:和歌山県東牟婁郡串本町古座188







熊野古道の歴史と伝統が息づく宿
定員10名
おすすめポイント
宿の紹介
熊野古道に泊まる。 KOZA River House 湯川邸は、かつて熊野古道の渡し船の“舟屋”として旅人を迎えていた歴史ある古民家です。 熊野古道の一部として時を重ねてきた建物に泊まり、その歴史を体感してみませんか? ◆熊野古道(大辺路)の歴史 当宿は、美しい熊野古道(大辺路)の一部であり、 その神秘的な趣の片鱗を感じることができる場所です。 特に、江戸時代には大辺路の風光明媚な景色が多くの観光客を魅了し、 多くの人々がこのルートを選んで巡礼の旅に出かけました。 当宿は古くから渡し舟の舟屋として数多くの人々を送り出し、 また舟を待つ間の憩いの場を提供してきました。 この渡し舟こそ熊野古道の一部であり、当宿はその歴史を受け継いできた建物であります。 ◆古民家を一棟まるごと貸し切り 築100年以上の古民家を一棟まるごと貸切でご利用いただけます。 日本の伝統的な趣を残しながら、現代の快適さも備えた空間です。 チェックインからチェックアウトまで 非対面で完結 できるため、プライベートな滞在をご希望の方に最適です。 夜になれば、田舎ならではの澄んだ空に星が瞬きます。 テラスや室内から、都会では見られない満天の星空をゆっくりとお楽しみください。 【施設情報】 敷地面積 412.88㎡ 延床面積 162㎡ ・寝室(ベッド 2 台、布団 8 組) ・リビング ・ダイニング ・キッチン ・会議スペース ・星の欠片を眺めるテラス 快適なネットワーク環境◎ ■ご留意いただきたいこと■ 古民家ゆえ一部天井が低いです 当施設は築100年以上の古民家のため、一部の天井が低くなっております。 ・1階エントランスを入ってすぐのロビーでは、身長190cmを超える方は天井に頭が当たります。 ・2階の寝室は、身長155cm以上の方は天井に頭が当たります。 ご滞在中は頭をぶつけないよう、どうぞご注意ください。 ■ BBQは近隣施設でお願いします■ 当宿の敷地内では防災・近隣への配慮のためバーベキューは禁止としております。 その代わり、車で約10分の場所にある「古座川 少女峰」をご案内しております。予約不要、無料で自然の河原でバーベキューをお楽しみいただけます。 《周辺アクティビティ》 ● 古座川レンタルカヌー 古座駅併設の南紀串本観光協会でレンタル可能。透明度の高い川を満喫できます。 ● 釣り 宿の目の前は黒潮流れる太平洋。堤防釣りや、歩いて5分の藤田渡船・釣船オーシャンフィールドで船釣りも楽しめます。 ● ホエールウォッチング 捕鯨の歴史が残る太地町が近く、クジラに出会える自然豊かな海域です。 ● ダイビング 年間を通して楽しめる温暖な南紀の海。初心者から上級者まで人気の地域です。
設備 / アメニティ
設備
アメニティ
その他
補足
・冷暖房(全居室エアコン) ・寝室 ベッド 2 台、布団 8 組 ・ランドリー 洗濯乾燥機(無料) ・トイレ 2 つ(洋式) ・全館Wifi 6 ・会議スペース(ミーティング用デスク&チェア) ■リビング テレビ Fire TV Stick 4K Max(ご自身の各種オンデマンドサービスをご利用いただけます) ■キッチン シンク、IHコンロ、冷凍冷蔵庫、電気ポット、電子レンジ、 調理用具、食器&カトラリー、基本的な調味料
定員
10名
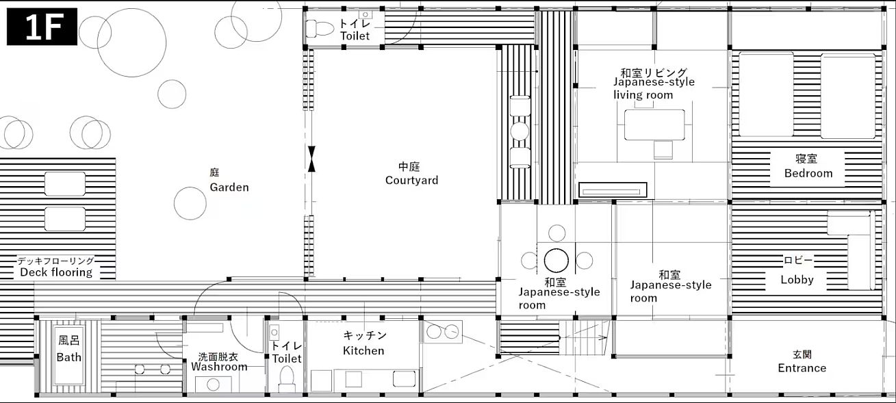
間取り
部屋の数: 5部屋
寝室の数: 3部屋


チェックイン / チェックアウト
チェックイン:15:00以降
チェックアウト:11:00前
宿泊料金詳細 / キャンセル料について
6名までの基本料金¥52,800~ 7名以上1名あたり¥5,500~ [連泊がおすすめ] 連泊の場合は、割引が適用されます! ※お申し込み時に空室が表示されていても、すでに他のお客様のご予約で満室となっている場合がございます。あらかじめご了承ください。 ※事前決済をお願いしております。お見積り金額にご了承いただけた場合には、振込先口座をメールでご案内いたします。 ※キャンセルはチェックインの4日前まで無料で行えます。 ※キャンセルに伴う返金は、銀行振込にて対応いたします。銀行振込手数料はお客様にご負担いただきますことをご了承ください。
キャンセルポリシー
5日前までのキャンセル:無料
4日前から当日までのキャンセル:100%
無連絡キャンセル:100%
支払い方法
予約・問い合わせ / 空き状況
受付中 受付中 (他会員 問合せ中) 空きなし
宿泊予定日の日付から予約・問い合わせできます。
地図
【アクセス】駐車場 4 台 ■車でお越しの場合 ・大阪府大阪市から約 2 時間 50 分 ・東京都新宿区から約 8 時間 ■電車でお越しの場合 ・新大阪駅から 3 時間 45 分 新大阪駅~古座駅:特急くろしお 3 時間 31 分 古座駅から徒歩14分 ・東京駅から 6 時間 31 分 東京駅~新大阪駅:東海道新幹線 2 時間 30 分 新大阪駅~古座駅:特急くろしお 3 時間 31 分 古座駅から徒歩14分 ■飛行機でお越しの場合 ・羽田空港から約 2 時間 25 分 羽田空港~南紀白浜空港:飛行機 60 分 南紀白浜空港~串本駅:空港リムジンバス 70 分 串本駅~当施設までタクシーで約 15 分 ___南紀に来たなら___ 古座は、熊野古道(大辺路)が通る、古座川沿いに広がる歴史のある町です。 「南紀に来たなら、ぜひ体験してほしい!」と思える魅力の数々をご紹介します。 【観光スポット】 ・大辺路 [宿からの所要時間] 徒歩 0 分! 当宿は熊野古道(大辺路)沿いに建っています。ただし大辺路は全長 92 km あります。 ・熊野三山(本宮大社、那智大社、速玉大社) [宿からの所要時間] 那智大社:車で40分 速玉大社:車で44分(那智大社から32分) 熊野本宮大社:車で1時間20分(速玉大社から44分) ・無量寺(串本応挙芦雪館) [宿からの所要時間] 車で 14 分 公共交通機関で 30~40分 ・潮岬 [宿からの所要時間] 車で 19 分 公共交通機関で 50~70分 ・トルコ記念館 [宿からの所要時間] 車で 26 分 公共交通機関で 60~90分 ・南紀熊野ジオパーク(一枚岩、橋杭岩、虫喰岩) [宿からの所要時間] それぞれ以下の所要時間で到着します。 橋杭岩:車で 8 分、公共交通機関で 17 分 虫喰岩:車で 8 分、公共交通機関で 22 分 一枚岩:車で 18 分、公共交通機関で 55 分 ・湯川温泉 [宿からの所要時間] 車で 26 分 公共交通機関で 54 分 ・太地町立くじらの博物館 [宿からの所要時間] 車で 26 分 公共交通機関で 54~62分
留意事項 / ハウスルール
【ハウスルール】 ●低い天井にご注意ください! 当宿は築100年以上の古民家をそのまま宿泊施設として利用しています。 高さ150cmの位置に梁や天井があり、非常に頭をぶつけやすいです。 もし頭をぶつけた場合、怒るのではなくて「昔の日本人は身長が低かったのだなぁ」と歴史を感じながら、深呼吸してください。 ●夜間騒音の禁止 近隣に迷惑となるので、21:00~8:00の間は騒音をたてないようにお願いします。 古座の街はお年寄りも多く、早めに就寝される方が多いです。21:00は早いですが、ご協力をお願いします。 ●道路にはみ出した駐車の禁止 自動車は敷地内に収まるように駐車してください。 もし収まらない場合、近隣(徒歩8分)の無料駐車場をご案内いたしますので、ご連絡ください。 ●喫煙場所 屋内および中庭は禁煙です。 テラスか駐車場で喫煙可能です。近隣のご迷惑にならないようご配慮をお願いします。 ●ゴミの分別 ゴミの分別にご協力ください。 各部屋にあるゴミ箱には、「燃えるゴミ」のみ入れてください。 ●トイレの使い方 使い方の説明が設備の横に掲示してあるので、そちらを御覧ください。 ●隣接した事務所について 当宿には事務所が隣接しており、当宿のホストが出入りする場合があります。 事務所とゲストエリアとは入り口が全く別なので、ホストはゲストエリアに絶対に立ち入りません。 ただし事務所の入り口は駐車場にあるので、ホストは駐車場には立ち入りします。
届出番号
和歌山県指令 新保支保第 46-5 号








































