オクビワコシキテイ
住所:滋賀県高島市マキノ町海津448-1







琵琶湖に直結!一日一組限定の純和風貸別荘
定員16名
おすすめポイント
宿の紹介
オクビワコシキテイは、琵琶湖でも湖北に建つ純和風古民家の一戸建て貸別荘です。 140年前の古民家を移築してきた吹抜け部分。 日本旧家屋建築の美と堅牢さを醸し出す囲炉裏、白壁に格子戸、ケヤ木の太い梁や柱、そして檜風呂。 85坪の2階建ての建物を一棟丸ごとお貸ししており、最大16名様までご宿泊可能です。(16名以上希望の場合はお問い合わせください) 家族旅行、気の合う友達グループ、サークルの思い出作りなど、大切な方と琵琶湖の波音を聴きながら素敵な時間をお過ごしください。 3世代揃っての還暦のお祝いやご家族だけの結婚式の会場としてもご利用いただいております。 ●建物のご案内 キッチン以外のすべてのお部屋が琵琶湖に面しており、奥琵琶湖の美しい景色が望めます。 地下の艇庫からは直接琵琶湖へ出ることができ、雨でもBBQをお楽しみいただけます。(※艇庫及び屋外のご利用は20時までです) 4月上旬には敷地横からはじまる海津大崎の桜が見頃です。 ~1階~ ・囲炉裏の間22帖 ・和室9帖と10帖 ・キッチン ・浴室(ヒノキの浴槽1つ、シャワー2か所) ・トイレ2か所 ~2階~ ・大広間20帖 ・和室10帖キッチン・浴室1ヵ所(シャワー3台)・洗面2か所・トイレ2か所・20畳の吹き抜けの間、10畳の和室、9畳の和室 ~艇庫(20時まで利用可能)~ 直接琵琶湖につながる地下艇庫で、雨の日でもBBQ可能です。 大きな声を出されたり、音楽をかけられると、近隣の迷惑になりますのでご利用をお断りする場合がございますのでご了承ください。 屋外と艇庫は20時まで利用可、琵琶湖への入水は日没までです。 ※シャッターを閉めてのBBQは一酸化炭素中毒の危険がありますので絶対にしないで下さい。 ●備品や設備について 調味料や部屋着のご用意はございませんので、必要な際は事前にご準備ください。 お食事はついておりません。 ・キッチンツール・食器類 包丁、まな板、鍋、フライパン、土鍋、栓抜、缶切、ワインオープナー等 ご飯茶碗、汁椀、取り皿、大皿、グラス、お猪口、徳利等 その他カトラリー各種 ・電化製品 キッチン:冷蔵庫、炊飯ジャー(10合×1台・5合×1台)、オーブンレンジ、湯沸かしポッド、トースター その他:冷暖房エアコン、石油ストーブ、洗濯機、ドライヤー、掃除機、Bluetoothスピーカー、TV(1台のみ) ・室内備品 無料Wi-Fi、座布団 敷き・掛け布団・まくらと各シーツ/人数分 フェイスタオル・バスタオル/人数分 ※4歳以下でお布団不要のお子様は人数に含まれておりません。(追加可能) ・消耗品 食器用洗剤、スポンジ、ふきん、ゴミ袋、シャンプー、コンディショナー、ボディソープ、ハンドソープ 歯ブラシセット/人数分 ※4歳以下でお布団不要のお子様は人数に含まれておりません。(追加可能) ・その他有料オプションでBBQコンロやビールサーバー等(詳細はお問い合わせください)
設備 / アメニティ
設備
アメニティ
その他
補足
敷き・掛け布団・まくらと各シーツ、フェイスタオル・バスタオル、歯ブラシセット 上記については、4歳以下無料宿泊のお子様分のご用意はございません。(5,000円/人で追加可能) ◆有料追加オプション(事前申込制) ●ビールサーバー10L=9,000円/樽 ●酎ハイサーバー10L=7,000円/樽 (プレーンまたはレモン味をお選びください) ●BBQコンロ=5,000円/台 (40×80cm・6~10人用・3台まで) 炭5㎏・着火剤・トング・炭用スコップ・消壺・軍手付きです。 ●新品の網=2,000円/枚 BBQコンロの網は再利用しております。 新品の網を希望される場合は、事前にお申込みください。 ●追加炭5㎏=1,500円 ●カセットコンロ型ホットプレート=1,000円/台 (カセットボンベ1本付・3台まで・室内利用不可) ●鍋用カセットコンロ=600円/台 (カセットボンベ1本付) ●追加カセットボンベ=200円/本 ※1本はセットに付いています ●流しそうめんセット=5,000円 (プラ竹約7mとスタンド用足木) ●アーリーチェックイン=1グループ全体で5,000円/時間 ●レイトチェックアウト=1グループ全体で5,000円/時間 いずれも最大2時間までです。 (アーリーチェックイン13:00から・レイトチェックアウト12:00まで) 状況により清掃中の場合やお受け出来ない事がありますので、お申込みの際は必ず事前にご確認ください。
定員
16名
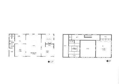
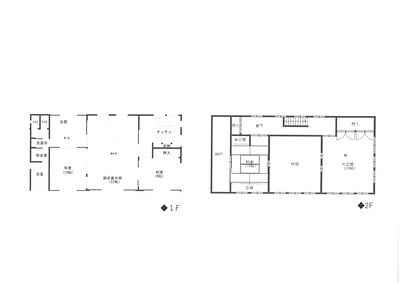
間取り
部屋の数: 5部屋
寝室の数: 5部屋
布団の数: 30組

チェックイン / チェックアウト
チェックイン:15:00以降
チェックアウト:10:00前
宿泊料金詳細 / キャンセル料について
◆予約・お問い合わせ対応:平日9:00~17:00◆ ●ご宿泊料金について 【基本料金+人数料金】です。 ※詳しい料金はお問合せください。 【基本料金】 基本料金①:50,000円/泊 基本料金②:70,000円/泊 基本料金③:100,000円/泊 基本料金④:120,000円/泊 【人数料金】 ○5,000円/人 事前申し込みの上、お振込の場合 ○6,000円/人 事前申し込みの上、現地でのお支払い ○9,000円/人 当日お申し出なく人数が増えていた場合 〇子供料金に関して 4歳以下でお布団・タオル・歯ブラシが不要なお客様に限り無料とさせていただいております。 お布団が必要な場合は大人料金と同一の5,000円/人となります。 -------------------------------------------------------------------- 見積り例(定員時) ※あくまで一例です、日付や人数の条件で料金が異なります。(税込・管理費込) 【基本料金①の場合】 大人16人でご宿泊(定員数) 総額130,000円 1人あたり8,125円 内訳:基本料金50,000円+人数料金5,000円×16名様 【基本料金④の場合】 大人16人でご宿泊(定員数) 総額200,000円 1人あたり12,500円 内訳:基本料金120,000円+人数料金5,000円×16名様 -------------------------------------------------------------------- ●お支払いに関して オクビワコシキテイではお申し込み後1週間以内の事前お振込みをお願いしております。 ご予約確認のメールに記載の金額を下記振込先にご入金いただいております。 ※1週間以内のお振込みがない場合は予約の取消しをさせていただきますのでご了承ください。 ●予約キャンセルについて お客様の都合により、宿泊のキャンセルまたは宿泊日の変更をされる場合は下記のキャンセル料および事務手数料(5%)を申し受けます。 ご利用日の31日以前:不要 ご利用日の30日前から:宿泊料の50% ご利用日の10日前から:宿泊料の80% ご利用日の5日前から:宿泊料の100% ご入金いただいた金額から、キャンセル料および事務手数料(5%)を差し引いた金額を返金させていただきます。 振込手数料はお客様のご負担とさせていただきます。 なお、31日以前でキャンセル料が不要な場合でも、振込手数料はお客様負担でお願いしております。 この場合、事務手数料(5%)は発生いたしません。
キャンセルポリシー
31日前までのキャンセル:無料
30日前から11日前までのキャンセル:50%
10日前から6日前までのキャンセル:80%
5日前から当日までのキャンセル:100%
無連絡キャンセル:100%
支払い方法
予約・問い合わせ / 空き状況
受付中 受付中 (他会員 問合せ中) 空きなし
宿泊予定日の日付から予約・問い合わせできます。
地図
◆交通情報◆ ●駐車場のご利用について 駐車場は敷地横と50mほど離れた駐車場11番にございます。 最大5台程度駐車可能で『SHIKITEI P』の白いコーンが目印です。 建物横に約4台(縦列駐車で奥に2台、手前に2台) 50mほど離れた駐車場11番にも1台駐車可能です。 ●車 名神高速道 京都東I.Cから西大津バイパス →湖西道路(有料) →国道161号線海津交差点右折すぐ(京都東から80分) ●公共交通機関 大阪駅から新快速で今津駅にて乗り換え(永原行) →マキノ駅下車(所要時間85分) ※マキノ駅から大阪駅迄の直行便有 ●バス(タウンバス) JRマキノ駅下り方面 →「海津一区」バス停下車後、徒歩約2分 ●タクシー JRマキノ駅よりタクシーで5分程度。 行先は「海津一区の四季亭まで」とお伝え下さい。 ※マキノ駅にはタクシーが常駐しておりませんので、ご利用の際は事前にタクシー会社にご連絡下さい。 大津第一交通:0740 32 4000 ◆観光名所◆ ○海津大崎 当館出てすぐ 琵琶湖国定公園の中でも有数の景勝地。 湖岸約4kmにわたり約800本の華麗なソメイヨシノが並びます。 オクビワコシキテイを出てすぐが、海津大崎の桜並木の入り口になります。 ○メタセコイア並木 車で10分程度 2.4kmにわたり約500本のメタセコイアが続く圧巻の並木道。 春夏秋冬それぞれに美しい景色を楽しめます。 ○白鬚神社 車で30分程度 「近江の厳島」とも呼ばれる近江最古の大社。 湖上の大鳥居が幻想的でパワースポットとしても有名です。 ◆お買い物情報◆ ●食材スーパー 〇SUPER CENTER PLANT 高島店 車で20分程度 炭や網~魚介、お肉、お野菜、お酒など一通りの食材がお手頃価格で揃います。 〇平和堂 今津店 車で15分程度 最寄りのスーパーです。 一通りの食材・日用品は揃います。 ●おすすめ食材店 〇マキノピックランド(野菜) 車で10分程度 有名なメタセコイア並木のすぐそば。 地元のおいしいお野菜が手に入ります。 〇たいさんじ風花の丘(野菜) 車で30分程度 地元のおいしいお野菜が手に入ります。 大阪方面からお越しの方におすすめです。 〇鳥中(鶏肉) 車で15分程度 高島名物味付き鶏肉のとんちゃんをはじめ、いろんな部位の鶏肉が売られています。 〇永谷精肉店(牛肉) 車で15分程度 滋賀牛のお店で、お手頃価格でおいしいお肉が手に入ります。 〇今津食肉(惣菜・肉) 車で15分程度 コロッケなどの揚げ物や、焼き鳥用のお肉など安くておいしいお店です。 〇日本海さかな街(海鮮) 車で30分程度 敦賀にあるに日本海側最大級の海鮮市場です。 向かいにスーパーもあるので、海鮮BBQやかにすきなどにおすすめのお店です。 ●ホームセンター 〇コメリハード&グリーン マキノ店 車で5分程度 追加で炭などを購入されるときはこちら。 ●コンビニ 〇セブンイレブン海津大崎店 車で1分、徒歩3分程度 最寄りのコンビニです。
留意事項 / ハウスルール
◆艇庫・琵琶湖のご利用に関して◆ 四季亭の艇庫では雨天時BBQが可能ですが、絶対に大きな声や音を出さないよう厳守してください。 話し声や笑い声が反響して対岸まで響くため、騒がずにご利用ください。 艇庫のご利用は20時まで、日没後の琵琶湖への入水は禁止です。 状況によっては、警察が来る場合がございます。 近隣のご迷惑になりますので必ず厳守してください。 お守りいただけない場合、次回以降のご利用をお断りいたします。 暴力団や暴力団関係者、反社会勢力の方、入れ墨のある方はご利用をお断りしております。 お越しいただきましても施設のご利用をお断りいたしますのでご了承くださいませ。 ●ペット同伴に関して 事前に誓約書を提出の上、下記条件を厳守いただける場合のみ無料で同伴可能です。 誓約書に署名・捺印してご宿泊日までにメール又は郵送にてお送りください。 ①室内へは入れないこと。(ケージ内での同伴) ②敷地内での糞尿の禁止。(ペットシート等をご持参ください) ③ケージ等をご持参いただき、玄関土間又は外部テラスにつないでいただくこと。 ④庭木や砂利等施設を傷めないこと。 ●喫煙 タバコは屋外の喫煙エリアでお願いしております。 室内は完全禁煙となりますのでご了承ください。 ●イベント&パーティー利用 イベント等でご利用も可能ですが必ず事前にご相談ください。 近隣のご迷惑にならない様、騒音等に十分ご配慮ください。
届出番号
滋賀県指令高保第5号























