ポーラーリゾート日光5
住所:栃木県日光市所野

.png)





世界遺産日光東照宮そば|駅から徒歩約7分の12名貸切ヴィラ
定員12名
おすすめポイント
宿の紹介
セルフチェックイン・セルフチェックアウトプライベート感のある東武日光駅から徒歩約7分という抜群の立地にある、最大12名まで宿泊可能な一棟貸切のバケーションホームです。 家から3分ほど歩けば、流れの穏やかな大谷川が現れます。 川の向こうには、日光を象徴する男体山と女峰山が堂々とそびえ、まるで絵画のような唯一無二の景観が広がります。 日中は、山々のハイキングや世界遺産エリアの散策を満喫し、夜には、川のせせらぎと澄んだ星空に包まれる。 山と川、そして歴史がひとつにつながる、日光ならではの旅体験をお楽しみいただけます。 周辺は静かな住宅街で、観光地の賑わいからほどよく離れた落ち着いた環境。 ご家族や友人グループが、気兼ねなくゆったりと過ごせるロケーションです。 室内には、大人数でもくつろげる広々としたリビング、複数人で調理できるキッチン、快適な寝具と清潔な水まわり設備をご用意しました。 洗濯機や無料駐車場も完備しているため、長期滞在や複数家族での旅行にも最適です。 1階にはダブルベッド1台と敷布団2枚を備えた寝室が1部屋、2階にはシングルベッド3台×2部屋に加えて敷布団2枚のお部屋をご用意し、大人数や複数家族の滞在にも対応しています。広めのリビングと使いやすいキッチン、洗濯機など長期滞在に便利な設備も揃え、快適にお過ごしいただけます。
設備 / アメニティ
設備
アメニティ
その他
補足
*食器*グラス・ワイングラス *カトラリー *冷蔵庫 *調理器具 *炊飯器 10合炊き *緑茶 *コーヒー *食材その他の調味料はご準備ください。 *お客様ご持参のIH調理器具・ホットプレート、カセットコンロなどは ご使用をなさらないでください。 (ご使用を確認した場合別途清掃料金5775円かかります。)
定員
12名
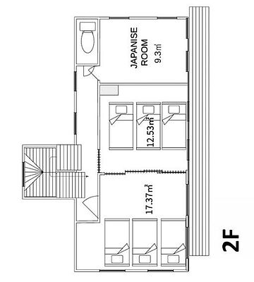
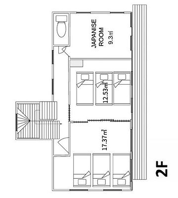
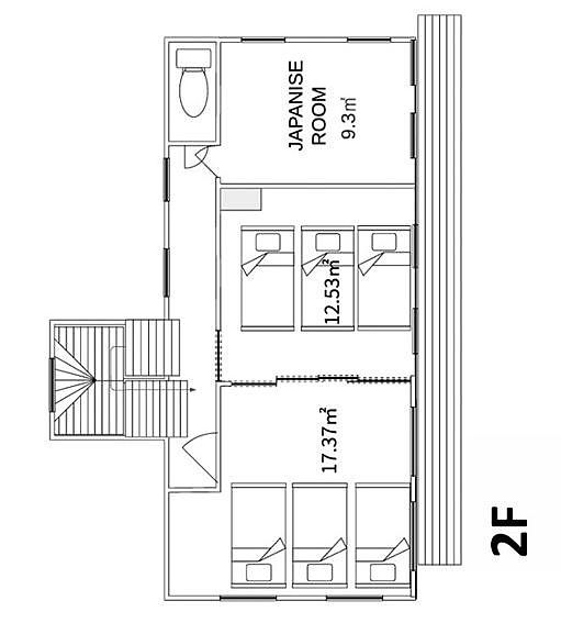
間取り
部屋の数: 6部屋
寝室の数: 4部屋
ベッドの数: 7台
布団の数: 4組


補足
1階にはダブルベッド1台と敷布団2枚を備えた寝室が1部屋、2階にはシングルベッド3台×2部屋に加えて敷布団2枚のお部屋をご用意し、大人数や複数家族の滞在にも対応しています。 12名の場合はダブルベッドは2名でのご利用となります。
チェックイン / チェックアウト
チェックイン:15:00以降
チェックアウト:10:00前
宿泊料金詳細 / キャンセル料について
○平日 (下記を除く日曜日~木曜日宿泊) 基本料金(大人2名様まで)¥25,300 追加大人1名様 ¥5,830 ○金曜日・土曜日・祭日前日・7月16日~8月31日 (下記を除く) 大人2名様から承ります。 基本料金(大人2名様まで)¥29,920 追加大人1名様 ¥6,930 ○GW(2026/4/29~5/5)・ 夏季お盆(2026/8/9~8/16)・ SW(2026/9/19~22)・ 年末年始(2026/12/27~1/3) 大人4名様から承ります。 基本料金(大人4名様まで)¥47,300 追加大人1名様 ¥6,930 ご宿泊代金合計 (基本料金+追加人数) 小学生:¥5830 3歳~5歳のお子様:¥3520 3歳未満のお子様:無料(添い寝・タオルセットなど無し) タオルセット追加:1セット(バスタオル・フェイスタオル各1枚)¥660
キャンセルポリシー
365日前から8日前までのキャンセル:50%
7日前から当日までのキャンセル:100%
無連絡キャンセル:100%
支払い方法
予約・問い合わせ / 空き状況
受付中 受付中 (他会員 問合せ中) 空きなし
宿泊予定日の日付から予約・問い合わせできます。
地図
東北自動車道「浦和IC」より車で約1時間25分 「日光IC」より車で約6分(2.1㎞) バス停第一発電所前より1分(50m) 徒歩の場合は、駅から歩行者専用ルートがあり、最短(訳7分)で到着できますが、途中に階段がございます。 そのため、スーツケースなど大きなお荷物をお持ちの場合は、お車・タクシー・バスのご利用を推奨いたします。 移動のストレスが少なく、スムーズにご到着いただけます。 駐車台数:4台まで可能(敷地内) 5人乗り普通乗用者3台+軽自動車1台 ポーラーリゾートの貸別荘は名前が似た施設が複数ございます。 グーグルマップで検索される際に予測検索で他の施設と間違えるゲスト様がいらっしゃいます。 またカーナビで住所検索ですと正しい場所が表示されない場合がございます。 必ずGoogleマップにて正式名称でのご検索・ご確認をお願い致します。 【周辺情報】 <ゴルフ> ・日光カンツリー倶楽部 約6分 3.8km ・日光紅葉ゴルフリゾート 約8分 3.4km ・日光霧降カントリークラブ 約8分 4.5km ・大日光ゴルフガーデン 約15分10km <テニス> ・大江戸温泉物語日光霧降テニスコート 約10分 約6.3km <スキー> ・日光湯本スキー場 約48分 約33km ・ハンターマウンテン塩原 約63分 約41km <温泉> ・鬼怒川温泉 約22分 約18km ・川俣温泉 約1時間8分 約44km ・湯西川温泉 約1時間1分 約47km ・奥日光湯元温泉 約47分 約32km ・川治温泉 約39分 約29km ・日光霧降大江戸温泉物語 約10分 約6.3km ・ほの香 約4分 約1.9km
留意事項 / ハウスルール
【注意】 当施設の近隣は閑静な住宅街となっております。近隣にご迷惑となる騒音や喧騒な行為は禁止させていただいております。 当施設ご利用にあたって下記事項にご同意いただける方のみご利用くださいますようお願い申し上げます。万が一、近隣住人や警察から通報があった場合には迷惑行為として5万円を別途請求させていただきます。 ・バルコニー や駐車スペースでのバーベキュー、花火など火気使用行為 ・室内、屋外での大音量で音楽を流す行為 ・屋内や近隣での喫煙、屋外での飲酒行為 ・近隣にご迷惑を及ぼすような大声、放歌、または喧騒な行為 ※当施設は24歳以下のグループのご予約はご遠慮いただいております。 人工美と自然美の粋を集めた名所として、その名を知られている日光 深い歴史とあふれる自然。春は山桜、夏はハイキング、秋は紅葉、冬は温泉、自然のめぐみや四季の変化が感じやすい豊かなエリアでもあります。素朴な建物や史跡も残る文化人に愛される土地に、きっと魅了されるでしょう。お寺や神社はもちろん、カフェ巡りや美術館巡りなど様々なレジャー等も充実。 近くの霜降り大橋付近では、夏は水遊びや釣りが楽しめます。 【室内外設備について】 鍵の紛失は実費請求となります。(税込5,500円) ベッドの上での飛び跳ねは危険ですのでおやめください。(破損の場合税込22,000円) 備品の汚損、破損、建物の破壊行為、シンク、トイレ風呂場等の水を詰まらせた場合は、当社より実費請求いたします。 なお、吐瀉物を確認した場合はクリーニング費11,000円他破損汚損物の実費請求がございます。 ご了承ください。 お部屋に関してお気づきの点・お困りごとは必ずチェックイン日18時迄に、ご連絡をお願いいたします。それを過ぎた場合は、ご対応できない場合がございます。 【チェックイン・チェックアウトについて】 前日12時までに御予約のない無断アーリーチェックイン・レイトチェックアウトは税込5,500円発生いたします。 当日追加のアーリーチェックイン・レイトチェックアウトは定価+1100円となります。 *当日追加の場合はご案内できない場合がございます。予めご了承ください。 【その他禁止行為】 ・ホットプレートの持ち込み ・諸施設で許可なく、広告、宣伝物の配布、掲示、物品の販売、勧誘、営業行為等、及びビラ等の配布、署名活動等を行うこと。 ・室内で撮影された写真等を当社の許可なく営業上の目的で公にすること。 ・その他当社が不適当と判断する行為 ※宿泊客の故意または過失により当社が損害を被ったときは、当社に対しその損害を賠償していただきます。 ※防犯上の観点から客室内を除き、別荘敷地内に防犯カメラを設置しておりますので、あらかじめご了承ください。 ※天災地変、設備不良、停電、断水、ガス/灯油切れ等の為に起こった損害に関し、過失の有無を問わず弊社は一切の責任を負いません。
届出番号
栃木県指令西保第010500138号



.jpg)

.jpg)

.png)











