ポーラーリゾート南軽井沢Ⅱ
住所:長野県北佐久郡軽井沢町長倉発地川端115-1







軽井沢わんこ旅
定員6名
おすすめポイント
宿の紹介
高原リゾート楽しい旅を、大切なワンちゃんとともに。 季節の移り変わりや美しい軽井沢の自然に寄り添うように、清々しい森の休日を。 レイクニュータウンは「碓氷・軽井沢IC」より約6.1㎞と軽井沢インターから近い別荘地のひとつ。 ポーラリゾート南軽井沢2 with DOGはレイクニュータウンの5つのエリアの中の【アカシヤ通り】にあり、南軽井沢に位置します。 そして、そこには心洗われるような情景が広がっています。 澄み渡る高原の空気、木々の匂い、霧、軽井沢にしか存在しない「特別な空気」は、普段の自分のまま過ごさせてくれます。 大自然を満喫するかけがえのない楽しいひとときを、ワンちゃんとお過ごしください。 周辺にはアクティビティや散策が楽しめるスポットがたくさん。 近くの風越公園は、野球やサッカーができる人工芝のグラウンドにテニスコート、そして全国でも珍しい屋内外のアイスリンクを備えています。 もちろん周辺にはゴルフ場もございます。 塩沢湖方面には美術館やローズガーデンのある「タリアセン」や「星野リゾート」もあります。 わんちゃんと一緒に思いっきり自然の中で体を動かしてリフレッシュも! *当施設では「ゆっくりと団欒していただきたい」、また、「雄大な自然をダイレクトに感じていただきたい」という思いから、テレビは御覧いただけませんが、ご希望の場合はネットフリックスを御覧いただけます。
設備 / アメニティ
設備
アメニティ
その他
補足
狂犬病予防接種証明書及び混合ワクチン(5種以上)をご宿泊1年以内に接種、または抗体陽性の証明書をご事前に提示下さい。 ※上記接種済みであり、伝染病にかかっていないワンちゃんのみご入場可能です。
定員
6名
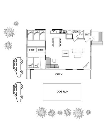
間取り
部屋の数: 2部屋
ベッドの数: 6台

チェックイン / チェックアウト
チェックイン:15:00以降
チェックアウト:10:00前
宿泊料金詳細 / キャンセル料について
○平日(下記を除く日曜日~木曜日宿泊) 大人2名様より承ります。 一棟(2名様まで) 27500円 (追加・1名様料金)大人 5500円 子供(小学生) 5500円 幼児(3才から就学前) 3300円 ワンコ (一律) 3300円 ○金曜日・土曜日・祭日前日 7月22日~8月31日 (GW・夏季お盆・年末年始を除く) 大人2名様より承ります。 一棟(2名様まで) 33000円 (追加・1名様料金)大人 6600円 子供(小学生) 5500円 幼児(3才から就学前) 3300円 ワンコ (一律) 3300円 ○GW(2025/4/26~5/5) 夏季お盆(2025/8/11~8/19) シルバーウィーク(2025/9/12-15. 20-.23) 年末年始(2025/12/29~2026/1/4) 大人4名様より承ります。 一棟(4名様まで) 51700円 (追加・1名様料金)大人 7700円 子供(小学生) 5500円 幼児(3才から就学前) 3300円 ワンコ (一律) 3300円 *BBQ(6600円)をご希望のゲスト様は事前にお申込みください。 ※天候等やお客様都合によりBBQ等のオプションの利用ができなかった場合は返金がございません。 チェックイン前日午前12時迄のご連絡で無料キャンセルが可能ですが、それ以降のご連絡は如何なる場合もご返金がございません。 ※BBQ等オプションの追加はチェックイン前日午前12時迄のご連絡で可能です。前日午前12時を過ぎますと通常金額プラス1100円となります。 なお、当日のご連絡ですとご準備ができないこともございます。予めご承知おきください。 *3才未満のゲスト様は無料です。 追加タオルセット(バスタオル・中タオル)550円 *1週間以上の連泊の場合は、チェックアウト日以外に1週間に1回程度清掃(別途9900円)を入らせていただきます。 【天災事変等について】 天災事変等の場合は、確定金額内での一年以内のご宿泊可能な日時の振替適用となります。(返金はございません) なお、交通機関が運行または一般道路の運行が可能な場合は規定のキャンセル料が発生 いたします。 ご了承ください。 上記は予約後に発生する予期せぬ事態からゲスト様をお守りすることを目的としています。
キャンセルポリシー
180日前から8日前までのキャンセル:50%
7日前から当日までのキャンセル:100%
無連絡キャンセル:100%
支払い方法
予約・問い合わせ / 空き状況
受付中 受付中 (他会員 問合せ中) 空きなし
宿泊予定日の日付から予約・問い合わせできます。
地図
上信越自動車道「碓氷・軽井沢I.C」から約8分(6.1㎞) 駐車場:2台 ポーラーリゾートの貸別荘は名前が似た施設が複数ございます。 グーグルマップで検索される際に予測検索で他の施設と間違えるゲスト様がいらっしゃいます。 またカーナビで住所検索ですと正しい場所が表示されない場合がございます。 必ずGoogleマップにて正式名称でのご検索・ご確認をお願い致します。 【周辺情報】 <ドッグラン> ・湯川ふるさと公園 (車11分 約6.8㎞) ・ドッグデプトガーデン 軽井沢町(車3分 約1.7㎞) <温泉> ・星野温泉 トンボの湯(車16分 約9.4㎞) <テニス> ・和美リゾート別荘地内に3面 有料設置(ご予約はお早めに2時間2500円) 心ゆくまでテニスを楽しめます <ゴルフ> ・軽井沢72ゴルフ(車5分 約3.2㎞) ・三井の森軽井沢カントリー倶楽部(車12分 約8㎞) ・軽井沢浅間ゴルフコース(車5分 約1.7㎞) がお気軽に楽しめます。 <ゴルフ練習場> ・和美パー3ゴルフ&練習場(車5分 約2.3㎞) ・軽井沢セブンツーゴルフ練習場(車6分 約3.5㎞) 300ヤード 100打席 池に打ち込む練習場 パターコースもあり <スキー場> ・軽井沢プリンススキー場(車13分 約8.3㎞) <その他> ・おもちゃ王国 ・塩沢湖(車10分 約7.6㎞) ・絵本の森美術館(車10分 約7.4㎞) ・ハルニレテラス(車16分 約11.1㎞) ・風越公園屋外スケート場(車9分 約6.8㎞) ・ルヴァン美術館(車11分 約8.3㎞) ・軽井沢植物園(車10分 約7.0㎞) ・軽井沢発地市庭(車7分 約4.5㎞) ・スーパーヤオトク(車10分 約5.5㎞) ・ツルヤ 軽井沢店(10分 約6.5㎞)
留意事項 / ハウスルール
【ご歓談時間】 軽井沢町の自然保護対策要綱に則り、当社管理別荘は屋外・デッキでのご歓談・片付け含めBBQのご利用は21時までとなります。 なお、22時以降に警察に通報された場合は軽犯罪法(1日以上30日未満の拘留もしくは1000円以上1万円未満の罰金)迷惑防止条例違反等の罪に問われる可能性がございます。 近隣の方にご迷惑を及ぼすような焚火・カラオケや放歌・パーティー・大声のご談笑・楽器・スピーカーの利用、または喧騒な行為があり、営業時間外(21時~翌朝10時迄)に、近隣の方より警察に通報された場合・または近隣クレームによりスタッフが現地に訪問せざるを得ない状況となった場合は緊急対応費 22,000円が発生いたします。(法的処置も含めます。) 21時以降~翌日9時まではお静かに室内窓を閉め、室内でお過ごしください。 (近隣に建物がない別荘の場合は特に声がとても響きますのでご注意くださいませ。) 【室内外設備について】 鍵の紛失は実費請求となります。(税込5,500円) ベッドの上での飛び跳ねは危険ですのでおやめください。(破損の場合税込22,000円) 備品の汚損、破損、建物の破壊行為、シンク、トイレ風呂場等の水を詰まらせた場合は、当社より実費請求いたします。 なお、吐瀉物を確認した場合はクリーニング費11,000円他破損汚損物の実費請求がございます。 ご了承ください。 お部屋に関してお気づきの点・お困りごとは必ずチェックイン日18時迄に、ご連絡をお願いいたします。それを過ぎた場合は、ご対応できない場合がございます。 【チェックイン・チェックアウトについて】 前日12時までに御予約のない無断アーリーチェックイン・レイトチェックアウトは税込5,500円発生いたします。 当日追加のアーリーチェックイン・レイトチェックアウトは定価+1100円となります。 *当日追加の場合はご案内できない場合がございます。予めご了承ください。 【BBQご利用について】 BBQセットの清掃・後片付けはご自身でお願いいたします。 未清掃の場合税込3,300円発生いたします。 *事前予約のみお貸し出し可能です。ゲスト様のお持ち込みは禁止させていただきます。 【その他禁止行為】 ・花火・ホットプレートの持ち込み ・諸施設で許可なく、広告、宣伝物の配布、掲示、物品の販売、勧誘、営業行為等、及びビラ等の配布、署名活動等を行うこと。 ・室内で撮影された写真等を当社の許可なく営業上の目的で公にすること。 ・その他当社が不適当と判断する行為 ※宿泊客の故意または過失により当社が損害を被ったときは、当社に対しその損害を賠償していただきます。 ※防犯上の観点から客室内を除き、別荘敷地内に防犯カメラを設置しておりますので、あらかじめご了承ください。 ※天災地変、設備不良、停電、断水、ガス/灯油切れ等の為に起こった損害に関し、過失の有無を問わず弊社は一切の責任を負いません。
届出番号
長野県佐久保健所指令元佐保第11-15号














