ポーラーリゾート日光
住所:栃木県日光市所野1542-27







MAX30名様まで!東武日光駅から車で6分の大型コテージ
定員30名
おすすめポイント
宿の紹介
自然の恵みと深い歴史に育まれた彩り豊かな街、日光。 誰もが思い浮かべる、東照宮、中禅寺湖といった観光スポットのほかにも、たくさんの魅力的なエリアが存在します。 杉並木にいにしえの思いにふれ、たくさんの郷土料理に舌鼓。 また、ダイナミックな自然あふれ、四季折々に違った表情を見せるのも日光の魅力。 春秋は桜や紅葉、夏は緑風、冬は樹氷と自然の顔も多彩な彩りに感動 釣りやラフティング・バードウォッチングにハイキング 冬はスキーにスケート 夜の星空は冬の醍醐味 漆黒の中に瞬くたくさんの星たちを眺めると、いま生きている事の大切さ・大切な人との幸せを感じます。 何よりも、日光で出会うのは人の温かさ 山の大樹の悠久の時間に、お客さま一人一人のやすらぎの瞬間が重なり和み合う。 巡りつくせない日光で、大切な人と、とっておきの豊かな時間を見つけませんか。
設備 / アメニティ
設備
アメニティ
その他
補足
22時以降はボイラー停止時間のため、大浴場、小浴場のご利用が出来ません。 (システム管理ためスタッフがお邪魔致します。ボイラー室に立ち入りますのでゲスト様とお会いすることはございません。)
定員
30名
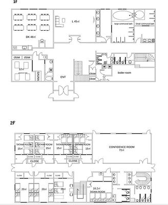
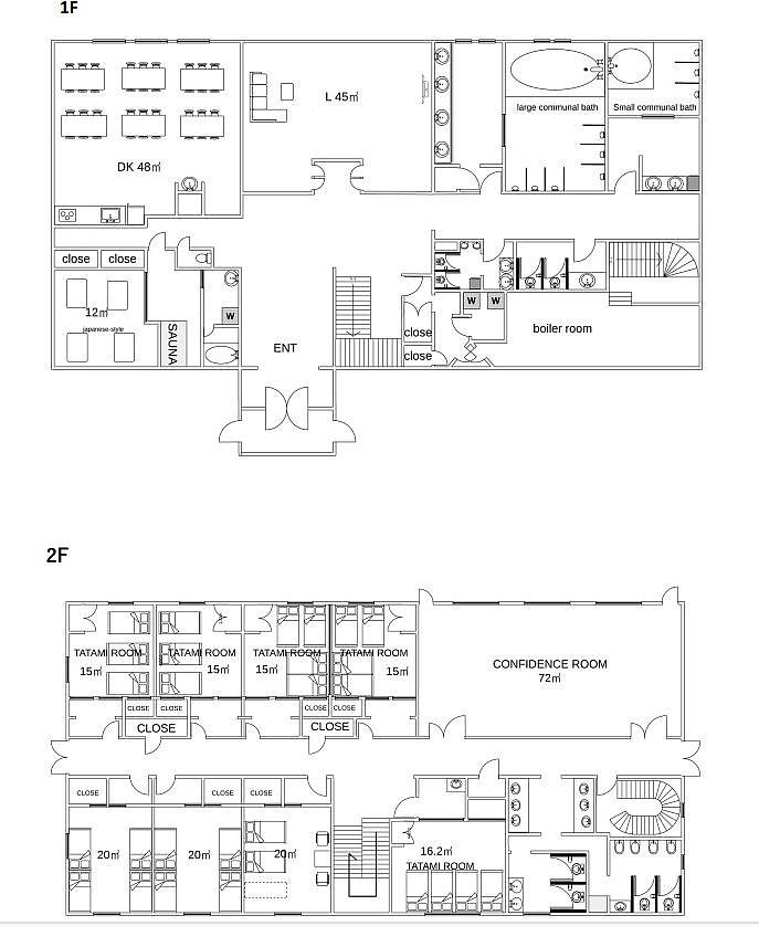
間取り
部屋の数: 9部屋
寝室の数: 9部屋
ベッドの数: 11台
布団の数: 19組

チェックイン / チェックアウト
チェックイン:15:00以降
チェックアウト:10:00前
宿泊料金詳細 / キャンセル料について
○平日(下記を除く日曜日~木曜日宿泊) 大人6名様より承ります。 ①一棟(6名様まで) 79200円 (追加・1名様料金)大人 6600円 子供(小学生) 5500円 幼児(3才から就学前) 3300円 ○金曜日・土曜日・祭日前日 7月22日~8 月31日 (GW・夏季お盆・年末年始を除く) 大人6名様より承ります。 ①一棟(6名様まで) 95700円 (追加・1名様料金)大人 7700円 子供(小学生) 5500円 幼児(3才から就学前) 3300円 ○GW(2026/5/2~5/5) 夏季お盆(2026/8/8~8/15) シルバーウィーク(2026/9/18~22) 年末年始(2026/12/29~1/2) 大人8名様より承ります。 ①一棟(8名様まで) 137500円 (追加・1名様料金)大人 7700円 子供(小学生) 5500円 幼児(3才から就学前) 3300円 【お部屋割について】 6室以上ご利用の場合は、別途11000円頂戴いたします。 *3才未満のゲスト様は無料です。 追加タオルセット(バスタオル・中タオル)550円 *別途冷暖房費 (4月~10月)330円/人 (11月~3月)550円/人 *6名様~19名様は小浴場をご利用いただけます。大浴場もご利用の場合は、1泊につき1名様あたり550円別途頂戴致します。(事前予約のみ受付) *20名様以上は大浴場をご利用いただけます。 BBQは事前にお申込みください。 ※天候等やお客様都合によりBBQ等のオプションの利用ができなかった場合は返金がございません。 チェックイン前日午前12時迄のご連絡で無料キャンセルが可能ですが、それ以降のご連絡は如何なる場合もご返金がございません。 ※BBQ等オプションの追加はチェックイン前日午前12時迄のご連絡で可能です。前日午前12時を過ぎますと通常金額プラス1100円となります。 なお、当日のご連絡ですとご準備ができないこともございます。予めご承知おきください。 *チェックイン前日12時以降にご人数追加・BBQ追加の場合は定価+1100円 となります。 【天災事変等について】 天災事変等の場合は、確定金額内での一年以内のご宿泊可能な日時の振替適用となります。(返金はございません) なお、交通機関が運行または一般道路の運行が可能な場合は規定のキャンセル料が発生 いたします。 ご了承ください。 上記は予約後に発生する予期せぬ事態からゲスト様をお守りすることを目的としています。
キャンセルポリシー
180日前から8日前までのキャンセル:50%
7日前から当日までのキャンセル:100%
無連絡キャンセル:100%
支払い方法
予約・問い合わせ / 空き状況
受付中 受付中 (他会員 問合せ中) 空きなし
宿泊予定日の日付から予約・問い合わせできます。
地図
東北自動車道「浦和IC」より車で約1時間30分 「日光IC」より車で約8分(3.2㎞) 「JR日光駅」より車で約7分(2.7㎞) 「東武日光駅」より車で約6分(2.4㎞) (JR日光駅・東武日光駅から) 国道119号線から右折し県道169号線に入ります→霧降大橋を渡り、道なりに進みます→変形十字路(小さなポールがたくさん立っている)の真ん中の道を行き、「リゾートイン霜降プラザ」を右手に通り過ぎます→「ペンションアニマーレ」横交差点を右折し289m先前方左側に建物が見えます。 駐車場:14台 ポーラーリゾートの貸別荘は名前が似た施設が複数ございます。 グーグルマップで検索される際に予測検索で他の施設と間違えるゲスト様がいらっしゃいます。 必ず正式名称でのご検索・ご確認をお願い致します。 【周辺情報】 <ゴルフ> ・日光カンツリー倶楽部 車9分(4.8㎞) ・日光紅葉ゴルフリゾート(日光プレミアゴルフ倶楽部) 車10分(5.1㎞) ・日光霧降カントリークラブ 車8分(4.1㎞) ・大日光ゴルフガーデン 車21分(12.9㎞) <テニス> ・大江戸温泉物語日光霧降テニスコート 車9分(5.7㎞) ・足尾向原テニスコート 車31分(24.2㎞) ・細尾テニスコート 車16分(9.7㎞) <スキー> ・日光湯本スキー場 車47分(33.9㎞) ・ハンターマウンテン塩原 車59分(43.8㎞) <温泉> ・鬼怒川温泉 車29分(20.3㎞) ・川俣温泉 車1時間3分(44.4㎞) ・湯西川温泉 車47分(36.7㎞) ・奥日光湯元温泉 車46分(33.6㎞) ・川治温泉 車39分(28.9㎞) ・日光霧降大江戸温泉物語 車 9分(5.7㎞) ・ほの香 車2分 (900m) <その他のスポーツ> ・日光霧降スケートセンター 車4分(1.9㎞) ・細尾ドームリンク 車18分(9.6㎞) ・今市運動公園 ゲートボール場 <その他> ・日光霧降大江戸温泉物語 車9分(5.7㎞) ・日光 宮前だんご 車 8分(3㎞) ・来らっせ (日替わり店舗・常設店舗) 車 46分(39㎞) ・日光珈琲 御用邸通り 車 9分(3.6㎞) ・日光東照宮 車6分(2.8㎞) ・中禅寺湖 車34分(24.0㎞) ・華厳の滝 車31分(21.0㎞) ・日光江戸村 車25分(16.6㎞) ・龍王峡 車32分(23㎞) ・日光だいや川公園 車15分(6.3㎞) ・日光植物園 11分(5.6㎞) ・ヘルシーライフ(スーパー) 車5分(2.2㎞) ・リオン・ドール日光店(スーパー) 車7分(2.6㎞) ・那須サファリパーク 車1時間10分(86.4㎞) ・那須ハイランドパーク 車1時間20分(94.6㎞) ・冬季限定 奥日光湯元温泉まつり「雪灯星」 車45分(34㎞) ・冬季限定 中禅寺温泉カマクラまつり ・冬季限定 湯西川温泉かまくら祭 車54分(48㎞) ・冬季限定 わたらせ渓谷鐵道各駅イルミネーション
留意事項 / ハウスルール
【ご歓談時間】 当社管理別荘は屋外・デッキでのご歓談・片付け含めBBQのご利用は21時までとなります。 なお、22時以降に警察に通報された場合は軽犯罪法(1日以上30日未満の拘留もしくは1000円以上1万円未満の罰金)迷惑防止条例違反等の罪に問われる可能性がございます。 近隣の方にご迷惑を及ぼすような焚火・カラオケや放歌・パーティー・大声のご談笑・楽器・スピーカーの利用、または喧騒な行為があり、営業時間外(21時~翌朝10時迄)に、近隣の方より警察に通報された場合・または近隣クレームによりスタッフが現地に訪問せざるを得ない状況となった場合は緊急対応費 22,000円が発生いたします。(法的処置も含めます。) 21時以降~翌日9時まではお静かに室内窓を閉め、室内でお過ごしください。 (近隣に建物がない別荘の場合は特に声がとても響きますのでご注意くださいませ。) 【室内外設備について】 鍵の紛失は実費請求となります。(税込5,500円) ベッドの上での飛び跳ねは危険ですのでおやめください。(破損の場合税込22,000円) 備品の汚損、破損、建物の破壊行為、シンク、トイレ風呂場等の水を詰まらせた場合は、当社より実費請求いたします。 なお、吐瀉物を確認した場合はクリーニング費11,000円他破損汚損物の実費請求がございます。 ご了承ください。 お部屋に関してお気づきの点・お困りごとは必ずチェックイン日18時迄に、ご連絡をお願いいたします。それを過ぎた場合は、ご対応できない場合がございます。 【チェックイン・チェックアウトについて】 前日12時までに御予約のない無断アーリーチェックイン・レイトチェックアウトは税込5,500円発生いたします。 当日追加のアーリーチェックイン・レイトチェックアウトは定価+1100円となります。 *当日追加の場合はご案内できない場合がございます。予めご了承ください。 【BBQご利用について】 BBQセットの清掃・後片付けはご自身でお願いいたします。 未清掃の場合税込3,300円発生いたします。 *事前予約のみお貸し出し可能です。ゲスト様のお持ち込みは禁止させていただきます。 【その他禁止行為】 ・花火・ホットプレートの持ち込み ・諸施設で許可なく、広告、宣伝物の配布、掲示、物品の販売、勧誘、営業行為等、及びビラ等の配布、署名活動等を行うこと。 ・室内で撮影された写真等を当社の許可なく営業上の目的で公にすること。 ・その他当社が不適当と判断する行為 ※宿泊客の故意または過失により当社が損害を被ったときは、当社に対しその損害を賠償していただきます。 ※防犯上の観点から客室内を除き、別荘敷地内に防犯カメラを設置しておりますので、あらかじめご了承ください。 ※天災地変、設備不良、停電、断水、ガス/灯油切れ等の為に起こった損害に関し、過失の有無を問わず弊社は一切の責任を負いません。
届出番号
栃木県指令西保第010500006号



.jpg)




















